Archivo:Lay out matafuegos.png
Ir a la navegación
Ir a la búsqueda
Tamaño de esta previsualización: 511 × 600 píxeles. Otra resolución: 565 × 663 píxeles.
Archivo original (565 × 663 píxeles; tamaño de archivo: 46 kB; tipo MIME: image/png)
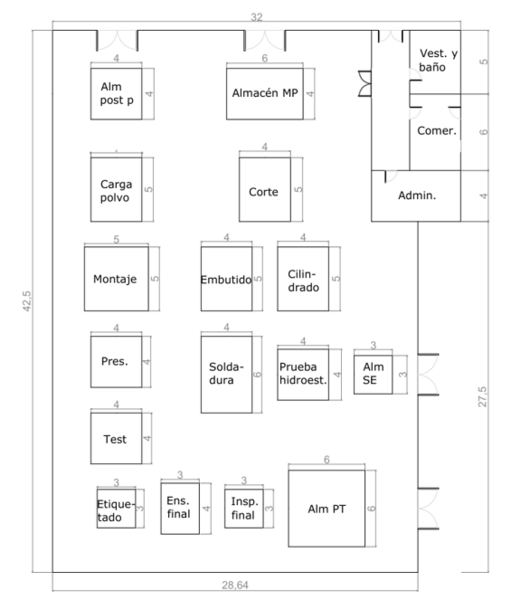
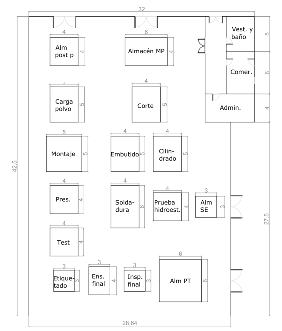
Anteproyecto de la planta para la producción de matafuegos
Historial del archivo
Haz clic sobre una fecha y hora para ver el archivo tal como apareció en ese momento.
| Fecha y hora | Miniatura | Dimensiones | Usuario | Comentario | |
|---|---|---|---|---|---|
| actual | 19:21 7 ago 2025 | 565 × 663 (46 kB) | RacubianMicaela (discusión | contribs.) |
No puedes sobrescribir este archivo.
Usos del archivo
No hay páginas que enlacen a este archivo.