2025/Grupo2/DimensionamientoFisico
Determinación de la Localización
La determinación de la locación de nuestra fabrica de Almohadas es un paso fundamental para identificar el lugar optimo para establecer la producción teniendo en cuenta los factores claves que impactan en la eficiencia operativa, los costos y la accesibilidad del producto. Tomamos en cuenta varias localidades dentro del GBA Y Zona Norte, tales como, Munro, San Martín, Pacheco, Tigre, Berazategui y Gral. Rodriguez.

Se utilizó una matriz de evaluación con puntajes del 1 al 5, donde 5 representa la mejor calificación posible. Tras comparar todas las opciones, Munro resultó ser la localidad más favorable, destacándose especialmente por su:
- Accesibilidad
- Proximidad a rutas y comunicación
- Cercanía al mercado y proveedores
- Infraestructura consolidada
- Disponibilidad de servicios básicos
Definición Técnica del Producto
Listado de Materiales (BOM)
Cabe destacar que las cantidades estan expresadas en base 1.000 Almohadas para una mejor lectura de los decimales


Especificaciones Técnicas
Dimensiones y tolerancias

● Largo: 70 cm ± 1 cm
● Ancho: 50 cm ± 1 cm
● Altura: 15 cm ± 1 cm
Relleno
● Material: Microfibra HCS 0,8D de corte 3 mm
● Peso estimado: 1,4 kg por almohada (ajustable ± 5 %).
Tejido de funda
● Tela: M70 microfibra 100 % poliéster
○ Propiedades: ancho 2,40 m, peso aprox. 170 g/m² (70 g/m²)
● Debe tener trama cerrada para evitar fuga de microfibra.
Envoltorio
● Bolsa: Polietileno cristal, espesor 60 µm, termosellado.
Construcción y costuras
● Diseño: Rectangular estándar con costura perimetral.
● Calidad: Costura reforzada, sin hilos sueltos ni irregularidades.
Permeabilidad al aire
Debe ser baja, compatible con clasificaciones Downproof. Se espera permeabilidad < 0,2 m³/m²/min, aunque no hay norma local específica local.
Peso total
● Aproximado 1,5 kg (incluye funda y relleno), tolerancia ± 5 %.
Presentación y etiquetado
● Incluye etiqueta con: dimensiones, composición (relleno + funda), instrucciones de lavado y origen.
Control de calidad
● Aleatoriamente, verificar dimensiones, peso, condiciones de costura y bolsas selladas en cada lote.
| Parámetro | Especificación |
|---|---|
| Dimensiones | 70 ±1 × 50 ±1 × 15 ±1 cm |
| Relleno | Microfibra HCS 0,8D 3 mm (~1,4 kg±5 %) |
| Funda | Downproof microfibra: 2,40 m ancho, 170 g/m² |
| Envoltorio | Bolsa PE cristal 60 µm, termosellada |
| Costuras | Reforzadas, perimetral |
| Peso total | ~1,5 kg ± 5 % |
| Etiquetado | Composición, dimensiones, lavado, origen |
| Control de calidad | Dimensiones, peso, envases, costuras |
Normas Aplicables
Reglamento MERCOSUR sobre etiquetado textil (Resolución 62/2018 incorporada por Res. 549/2021)
Obligaciones de composición
● Deben aparecer las fibras textiles y sus porcentajes (%) decrecientes
● Si una fibra representa ≥85 %, puede indicarse como:
○ “Fibra X 85 %”
○ “Fibra X 85 % como mínimo”
Presentación
● La información debe ser clara, indeleble, en idioma español, con tipografía de al menos 2 mm, ubicada en lugar de fácil visualización
Etiquetado de cuidados (lavado, secado, planchado, limpieza profesional)
● Símbolos/textos obligatorios
○ Se deben informar los tratamientos de: lavado, blanqueo, secado, planchado y cuidado profesional, siguiendo el orden establecido
● Norma de referencia
○ El uso de símbolos o textos debe ajustarse a la norma ISO 3758:2013, que define pictogramas reconocidos internacionalmente
● Protección del producto
○ Si todos los procesos principales están marcados como “no permitidos”, se debe advertir “producto desechable”
○ Si se prohíbe lavar, debe indicarse el tipo de limpieza profesional recomendado (seca o húmeda)
Características condición del Producto
Condición física del producto terminado
● Forma: Rectangular, volumen homogéneo, sin deformaciones.
● Superficie: Lisa, sin arrugas, sin acumulación visible de relleno.
● Costuras: Firmes, sin hilos sueltos ni aperturas.
● Etiqueta cosida, sin desprendimientos ni errores tipográficos.
● Funda: limpia, sin manchas, sin roturas, sin transferencia de color.
● Relleno: distribuido de forma equilibrada, sin bultos ni zonas vacías.
Condición higiénica y sanitaria
● Producto limpio y libre de olores.
● Sin presencia de polvo, hongos, ácaros, insectos u otros contaminantes visibles.
● Libre de humedad o condensación (control de ambiente en el envasado).
Presentación
● Envasado individual en bolsa de polietileno cristal de 60 micrones, termosellada, y posteriormente en bolsones de 10 almohadas
● La bolsa debe estar transparente, sin opacidad ni daños, permitiendo visualizar el producto.
● Incluye etiqueta con:
● Dimensiones del producto
● Composición del relleno y funda
● Instrucciones de cuidado y lavado
● Origen (Industria Argentina)
● Fecha de fabricación y lote
Condición funcional esperada
● Conservar su volumen, forma y suavidad durante al menos 12 meses de uso normal.
● No debe perder microfibras en el uso normal.
Rechazo o no conformidad
El producto se considerará NO conforme si presenta:
● Costuras abiertas o mal terminadas
● Desviación de medidas superiores a ± 1 cm
● Fuga de microfibras desde la funda
● Deformación permanente
● Bolsa de embalaje dañada o mal sellada
● Etiqueta ilegible, incompleta o ausente
Plan de Ensayos
Ensayos sobre los materiales

Ensayos sobre el Producto Terminado

Se deberá llevar un registro interno de calidad por lote, con fecha, operador, lote de insumos, resultados y observaciones.
Las muestras defectuosas se aislarán y etiquetarán.
Cada lote deberá contar con un formulario firmado por el responsable de control de calidad.
Acondicionamiento del Producto
Empaque individual (envase primario)
● Cada almohada se introduce en una bolsa de polietileno cristal de 60 µm, termosellada.
● Garantiza protección contra polvo, humedad y contaminación, y permite visualizar el producto en góndola.
Agrupado en bolsón PLTN (empaque secundario)
● Cada 10 almohadas agrupadas en un bolsón PLTN 095×130/100:
○ Dimensiones externas: 95 cm de ancho × 130 cm de alto.
○ Espesor del plástico: nominalmente 100 µm (accorde a la designación “/100”).
○ Tratamiento de fuerte resistencia (FUE 17.5‑CR): alta durabilidad y resistente a rasgaduras.
● El bolsón se cierra mediante cinta adhesiva, formando un paquete compacto y seguro.
● Beneficios del uso del bolsón PLTN
○ Protección industrial: resistente a impactos, abrasión, agua y luz.
○ Facilita el almacenamiento y traslado de lotes en forma unitaria (10 uds) a centros de distribución y mayoristas
○ Reduce tiempos de embalaje comparado con cajas individuales.
Embalaje terciario: paletización
● Cada 10 bolsónes (cada uno con 10 almohadas) se colocan sobre pallets.
● Fajar con film retráctil, evitando que sobresalgan bordes.
Definición del Proceso de Producción
Descripción de cada etapa del proceso productivo

El proceso de producción de almohadas se inicia con la recepción y almacenamiento de materias primas. Los insumos principales —fibra HCS 7D/32 mm, tela M70, hilo, lubricante antiestático, polietileno y afiches— provienen de proveedores locales e internacionales. Una vez recibidos, se realiza una inspección de calidad que contempla parámetros como tonalidad, densidad y peso. Según sus características, cada material se almacena en áreas específicas: la fibra se conserva en espacios secos y cerrados para evitar humedad, mientras que la tela se dispone en estanterías limpias, protegidas contra la acumulación de polvo.
La primera etapa productiva se desarrolla en la confeccionadora de fundas Merello ME-320. La tela M70, que llega en rollos de 53 cm de ancho previamente cortados por el proveedor, se coloca en el porta bobinas de la máquina. El sistema de alimentación automática desenrolla y posiciona simultáneamente el rollo superior e inferior mediante rodillos, asegurando una alineación precisa. Las estaciones de costura lateral cierran los bordes y colocan la etiqueta legal, dejando abierta la parte superior de la funda. Posteriormente, el PLC de la máquina mide la longitud programada de 75 cm, activa la costura transversal y ejecuta el corte con una precisión milimétrica (aproximadamente ±0,05 %). Las fundas son apiladas y se retiran los sobrantes de tela generados en el refilado lateral.


Por ultimo un operador de forma manual da vuelta las fundas para que queden con la costura hacia adentro.
A continuación, la cargadora de fibra Masias CB-150 se encarga de preparar y dosificar el relleno. Se introduce la “bala” de fibra en la máquina, donde una cinta transportadora la conduce hacia rodillos con cuchillas que la abren y esponjan. La fibra es alimentada desde una tolva mediante un ventilador, mientras que, por un canal adicional, se incorpora lubricante antiestático para evitar la acumulación de carga durante el proceso. Dentro del embudo de la máquina, la fibra esponjada se compacta en unidades volumétricas determinadas. Sensores calibrados controlados por PLC aseguran que cada funda reciba el peso exacto, y la boca de salida ancha distribuye el relleno de forma homogénea para evitar densidades irregulares. En esta instancia, un operario coloca manualmente la funda abierta en la posición de carga para que reciba el relleno.



Una vez cargadas, las fundas pasan al puesto de cerrado equipado con máquina JUKI. El operario posiciona la abertura de la funda bajo la aguja y baja el prensa-telas manualmente para estabilizar la tela. Al accionar el pedal principal, la máquina realiza una puntada recta a lo largo de toda la abertura, incorporando en el mismo ciclo la etiqueta con la marca del producto. Al finalizar, se activa el pedal corta-hilo, que ejecuta un refuerzo invertido para prevenir deshilachados y corta el hilo de forma automática. El operario levanta el prensa-telas, inspecciona la costura y la etiqueta, y retira la almohada ya cerrada.
El último paso es el empaquetado mediante la embolsadora Merello ME-305. En esta máquina se coloca un rollo de polietileno tubular, que se desenrolla y guía automáticamente a través de rodillos motorizados. Una cuchilla corta el polietileno a la medida exacta y realiza una soldadura inferior para garantizar hermeticidad. El operario coloca manualmente las almohadas sobre la cinta transportadora de la máquina, y, antes de ser prensadas, se posiciona el afiche sobre el producto de forma automática por la misma máquina. El prensado integra el conjunto y, simultáneamente, un punzón perfora el film para permitir la entrada de aire y evitar un sellado completamente hermético que dificulte su manipulación. Luego, las placas calientes efectúan el sellado superior, cortando el exceso de material y dejando un acabado limpio, sin costuras laterales. La bolsa es expulsada automáticamente hacia la zona de descarga, donde un operario retira la almohada envasada y la acopia en bolsones de polietileno para su posterior almacenamiento o despacho.
Determinación de las máquinas e instalaciones. Cálculos
Especificaciones técnicas de las máquinas (capacidades, tamaño de lotes, tiempos)
Cargadora automática MASIAS CB-150 (Alimentación de fibra)

Cargadora automática Masias (máquina de apertura y carga de fibra para relleno de almohadas). Esta máquina se encarga de abrir las balas de fibra y alimentar el material al sistema de llenado de almohadas de forma continua y dosificada. Su capacidad de procesamiento ronda los 125–150 kg de fibra por hora. Esto equivale aproximadamente al relleno de ~85 almohadas por hora. La cargadora suele integrar elementos como rodillos con púas o desmenuzadores para esponjar la fibra y un sistema de transporte neumático o por aspiración que traslada la fibra abierta hacia la estación de llenado. Dispone de controles automatizados para dosificar la cantidad de fibra requerida por almohada, evitando la variación de peso. Incorporan básculas electrónicas y llenado por succión para garantizar un peso uniforme del relleno. Los tiempos de ciclo por unidad son muy breves (segundos) ya que el sistema suministra fibra continuamente al ritmo de la línea.
Embolsadora de almohadas MERELLO ME-305 (Empaque y compresión)

Máquina embolsadora automática Merello ME-305 para almohadas (sellado en bolsa tubular). Esta máquina envasa y comprime al vacío las almohadas ya rellenas, preparándolas para su almacenamiento o despacho. Trabaja formando la bolsa a partir de un tubo continuo de polietileno e incluye un ciclo automático de alimentación de la almohada, embolsado, prensado al vacío para extraer el aire y soldadura térmica de cierre. Para evitar el sellado al vacío dispone de un punzon que perfora la bolsa antes del sellado. Puede procesar almohadas de distintos tamaños, ajustando automáticamente el largo de la bolsa y realizando corte neumático a la medida programada. Su velocidad de producción típica es de 7–8 almohadas por minuto. Esto equivale aproximadamente a 420–480 almohadas por hora en condiciones estándar. Técnicamente, la ME-305 emplea motores con variadores de frecuencia para un movimiento suave y duradero, control lógico programable (PLC) con pantalla táctil para monitorear el estado y permitir ajustes, y opciones añadibles como centrado de logotipo por fotocélula, perforador de asas, etiquetadora, inserción de catálogos, apilador, etc.
Confeccionadora de fundas MERELLO ME-320 (Fabricación de fundas de tela)

Máquina confeccionadora Merello ME-320 produciendo fundas de almohada desde bobina de tela. Este equipo fabrica las fundas de tela de las almohadas en línea, a partir de rollos de tejido (puede trabajar con TNT/non-woven, algodón, poliéster, tela acolchada, etc.). Realiza automáticamente las operaciones de alimentación de la tela, doblado, costura lateral, etiquetado, medición de longitud, costura transversal de cierre y corte, apilando las fundas terminadas. Admite tamaños de funda desde 30×30 cm hasta 120×80 cm para adaptarse a cojines pequeños o almohadas grandes. La velocidad de ciclo alcanza hasta 5 - 7 fundas por minuto en condiciones óptimas, es decir unas 300–400 fundas/hora de máxima (aunque la velocidad práctica puede ajustarse según el material y tamaño). Esto asegura que la confección de fundas no sea el cuello de botella de la producción, dado que supera la demanda horaria de ~300-400 fundas/h. La máquina está equipada con sistemas de corte de precisión (error <0,05% en longitud) para minimizar desperdicios. También utiliza variadores de velocidad en todos sus motores para eficiencia energética y mayor vida útil. Se puede integrar un sistema de semicerrado de la boca de llenado, así como etiquetador automático.
Máquinas de coser industriales (cerrado de fundas)

Para el cerrado definitivo de las almohadas (una vez rellenadas de fibra) se emplean máquinas de coser industriales de una o varias agujas. En esta etapa, operarios cierran la abertura de llenado de cada funda con una costura recta resistente. Dado el gran volumen de producción, se recomienda usar equipos de alta velocidad y confiabilidad, de marcas como JUKI. Por ejemplo, una máquina de coser recta industrial Juki modelo DDL-8700H puede alcanzar hasta 5.500 puntadas por minuto, lo que permite coser el borde de una almohada en segundos. Estas máquinas suelen ser sencillas en cuanto a especificaciones: motores eléctricos de ~0,5 kW (generalmente motores servo de ahorro energético), capaces de coser materiales medianamente gruesos (tela de funda y eventualmente la fibra en la zona de cierre). Pueden contar con aditamentos como cortahilos automáticos. La productividad por máquina de coser dependerá del operario; típicamente un trabajador entrenado puede cerrar ~1 almohada/minuto (60 por hora) de forma sostenida. Las máquinas de coser tienen la ventaja de ser relativamente estándar y modulares en número según la necesidad de producción.
Consumos de energía, agua y otros servicios
● Cargadora Masias CB-150: Consume en torno a 5–8 kW de potencia eléctrica durante la operación (motor principal de apertura de fibra ~8 HP ≈ 6 kW, más motores de transporte neumático). No necesita aire comprimido, ya que el transporte de la fibra se realiza por soplado/aspiración mediante ventiladores eléctricos integrados.
● Embolsadora Merello ME-305: Potencia eléctrica instalada aproximada de 5–6 kW, con picos de hasta ~25 A en 220 V (≈5,5 kW) durante el sellado térmico. Incluye motores, resistencias de sellado y bomba de vacío para la compresión, sumando este consumo. Requiere aire comprimido para algunos actuadores neumáticos (por ejemplo, el sistema de corte de la bolsa por cuchilla neumática y posibles cilindros para prensar o mover las almohadas). El consumo de aire es moderado, en el orden de 40–50 litros/minuto a ~6 bar de presión (valor de referencia para embolsadoras similares)
● Confeccionadora Merello ME-320: Demanda eléctrica aproximada de 3–5 kW durante operación (varios motores para rodillos de arrastre, cabezales de costura, cortadores, etc., todos con variador de frecuencia). Usa también aire comprimido para ciertos movimientos neumáticos, como sujetadores de tela o cortadores neumáticos. Se estima un consumo de aire similar al de la embolsadora, alrededor de 40 L/min a 6 bar.
● Máquinas de coser industriales: Cada una consume relativamente poca electricidad, típicamente 0,5 kW (500 W) por máquina en uso continuo. Al ser motor servo, el consumo real depende de la carga y uso del pedal, pero es eficiente (ahorro energético respecto a motores de embrague tradicionales).
Cursograma de proceso

Mantenimiento y medios de control
● Cargadora/llenadora de fibra (Masias): Requiere limpiezas frecuentes para remover acumulación de polvo, pelusa y fibras en los mecanismos de apertura y conductos de aspiración. Es aconsejable una limpieza diaria de filtros o rejillas de ventiladores, y una limpieza más profunda semanal de la cámara de apertura de fibra para evitar obstrucciones o sobrecarga de motor. Mantenimiento preventivo incluye lubricación periódica de rodamientos, cadenas o reductores en el sistema de alimentación. Las cuchillas o púas del abridor de fibra deben inspeccionarse y sustituirse si están desgastadas para mantener la capacidad de apertura. La balanza de dosificación (si integra un sistema de pesado del bollo de fibra) debe calibrarse regularmente para asegurar que cada almohada recibe la cantidad correcta de relleno. En cuanto a medios de control, estas máquinas suelen incorporar PLC y sensores: por ejemplo, celdas de carga que detectan el peso dosificado para cada almohada. El PLC permite controlar la secuencia de carga de fibra y puede registrar datos de producción (pesos promedios, conteo de unidades) para control de calidad.
● Embolsadora ME-305: Debe recibir mantenimiento en sus sistemas mecánicos de transporte y sellado. Diariamente conviene limpiar restos de plástico o polvo de fibra en la zona de soldadura y cuchillas, para asegurar sellos herméticos y cortes limpios. Las resistencias de sellado térmico requieren inspección; con el uso prolongado pueden desgastarse o acumular residuo, debiendo cambiarse a intervalos (según las horas de sellado efectivas). El sistema de vacío (bombas o venturis) debe revisarse: vaciar y limpiar filtros de aire o depósitos de la bomba de vacío para mantener la potencia de succión. Los compresores o líneas de aire comprimido que alimentan la máquina necesitan purga de condensado y mantenimiento según recomendación (aunque suele ser centralizado para toda la planta). En cuanto a componentes de control, la ME-305 cuenta con una interfaz PLC táctil que monitorea estados (por ejemplo, si falta film, si una almohada está mal posicionada, etc.) e implementa sistemas de seguridad (parada automática ante puertas abiertas o si algún sensor detecta obstrucción). Es importante verificar periódicamente el correcto funcionamiento de sensores (fotocélulas, finales de carrera) que alinean el film o detectan la presencia de almohadas, y recalibrar si fuera necesario.
● Confeccionadora ME-320: Se debe lubricar y limpiar los cabezales de costura (como cualquier máquina de coser, mantener engrasado el gancho, barras de aguja, etc.) siguiendo las indicaciones del fabricante. También cambiar agujas y elementos de costura cuando presenten desgaste (agujas romas pueden dañar la tela o reducir la calidad de la puntada). Los sistemas de corte (cuchillas longitudinales y transversales) deben limpiarse de rebabas de tela y afilarse o reemplazarse si pierden filo, para mantener cortes precisos. Como trabaja con rollos de tela, los rodillos de arrastre y guías requieren limpieza para eliminar pelusa o adhesivo de etiquetas que pueda quedar. En la parte de control, esta máquina igualmente cuenta con un PLC que coordina las etapas de plegado, cosido y corte con alta sincronización. Tiene sensores de control de tensión de la tela, detectores de fin de rollo, etc., que deben calibrarse o al menos probarse cuando se instala un nuevo rollo. Un mantenimiento preventivo típico puede incluir verificaciones mensuales de la alineación de los dobladillos y guías (para asegurar que las costuras caen donde deben), y ajuste de la tensión de hilos en las máquinas de coser integradas.
● Máquinas de coser manuales: Su mantenimiento es el más sencillo. Cada máquina de coser industrial requiere lubricación diaria (muchos tienen cárter de aceite para lubricación automática, que se rellena periódicamente, y puntos de aceite manual en partes móviles). Las agujas se deben reemplazar frecuentemente, ya que cosiendo telas gruesas y posiblemente a través de fibra, se desafilan rápido. También es necesario revisar la tensión y estado de las correas de transmisión del motor, limpiar el polvo y pelusa acumulada dentro de la máquina (para evitar atascos o recalentamiento), y calibrar la sincronía de garfio/aguja si la máquina golpea o salta puntadas. Tienen sistemas de control electrónicos sencillos (ej. panel para ajustar velocidad máxima, conteo de puntadas, posicionador de aguja arriba/abajo); estos deben mantenerse limpios y libres de humedad. Es recomendable que el personal de mantenimiento verifique trimestralmente el estado eléctrico (cables, conexiones) y de seguridad (interruptor de pedal, protectores de dedos) de estas máquinas.
Sistemas de seguridad (incendios, accidentes y otros)
● Prevención y protección contra incendios: La fibra de poliéster y el polvo textil son materiales combustibles; una chispa, sobrecalentamiento de equipo o fricción excesiva podría iniciar un fuego. Por ello, es fundamental equipar la instalación con detectores de humo y/o sensores de incremento de temperatura en las áreas de fibra (especialmente cerca de la cargadora Masias y silos de almacenamiento de fibra). Se deben instalar extintores de incendio de tipo ABC en puntos estratégicos. Un sistema de rociadores automáticos es muy recomendable en la zona de producción y almacén de materia prima, para suprimir rápidamente cualquier conato de incendio. Desde el diseño, hay que minimizar fuentes de ignición: todos los motores deben estar correctamente ventilados para evitar sobrecalentamiento; las instalaciones eléctricas con protección contra cortocircuitos; y se debe implementar una rigurosa limpieza de pelusa y polvo (que además de combustible puede generar explosiones de polvo si se acumula en suspensión). En equipos como la embolsadora, las resistencias de sellado tienen termostatos; asegurar su correcto funcionamiento evita que alcancen temperaturas peligrosas fuera de control. También es importante señalizar y entrenar al personal en rutas de evacuación y uso de extintores.
● Seguridad de máquinas y operarios (prevención de accidentes): Las máquinas de gran porte (cargadora, embolsadora, confeccionadora) vienen provistas de carcasas y resguardos en las partes móviles para evitar contacto accidental. Es esencial no anular ni remover estos resguardos; por el contrario, verificar que tengan interruptores de seguridad (interlocks) que detengan la máquina si una puerta de acceso se abre. Por ejemplo, la embolsadora ME-305 debe detenerse si se abre la cubierta de la zona de sellado o si se ingresa al área de prensado, para impedir atrapamientos. Del mismo modo, la confeccionadora ME-320 tiene partes de costura y corte que podrían lesionar; debe contar con protectores en las cuchillas y un parada de emergencia al alcance. Todos los equipos deben tener botones de paro de emergencia accesibles para los operarios en caso de cualquier anomalía. Antes de ingresar una mano en el cargador de fibra o en la embolsadora, asegurar que la máquina está apagada y bloqueada contra re-arranque inesperado. En las estaciones manuales de costura, aunque son más simples, también hay riesgos de pinchazos o cortes: las máquinas de coser industriales suelen incorporar protecciones para los dedos cercanos a la aguja y deben usarse. En cuanto a ergonomía, proveer sillas ajustables y apoyar brazos para quienes cosen ayuda a prevenir lesiones musculares dado el volumen de piezas repetitivas a cerrar.
● Medidas adicionales de control y señalización: Es importante demarcar con señalizaciones visuales las zonas de riesgo: por ejemplo, marcar el perímetro de máquinas en el piso, colocar letreros de “No acercar manos – máquina en operación” en la cargadora y similares. Mantener un orden y limpieza (metodología 5S) evita caídas o tropiezos con material en el suelo, especialmente alrededor de las máquinas de coser donde pueden acumularse retazos o hilos. También, al trabajar con compresores y sistemas neumáticos, asegurar que las mangueras estén en buen estado. La capacitación es crucial: todo el personal debe recibir entrenamiento inicial y refrescos periódicos en manejo seguro de maquinaria, respuesta ante emergencias (por ejemplo, si hay un incendio incipiente en la fibra, cómo usar extintor sin ponerse en peligro) y primeros auxilios básicos.
Cuadro de especificaciones técnicas

Balance Anual de Material - Producción Seccional
A continuación adjuntamos un esquema de pasos de operaciones, haciendo la a claración de que la confección de la funada y el cargado de fibra se realizan en paralelo. La producción anual en régimen es de 107914,18 kg.

Materia prima necesaria para producir una almohada
| Nivel | Texto breve-objeto | Ctd.comp onente (UMC) | Un.medida componente | % sobre el total | |
| 1 | MICROFIBRA HCS 0,8D 3MM | 1,4000 | KG | 93,26485467% | |
| 1 | LUBRICANTE ANTIESTATICO PR-4 | 0,0001 | KG | 0,00826060% | |
| 1 | HILO PES CERRADO BCO | 0,000125 | KG | 0,00832722% | |
| 1 | FILM STRETCH CRISTAL VIRGEN | 0,0010 | KG | 0,06661775% | |
| 1 | PLTN CRISTAL A-53CM 60MIC | 0,0520 | KG | 3,46412317% | |
| 2 | TIRA FUNDA DOWNPROOF MICRO FIBRA 53 | 0,0286 | KG | 1,90526775% | |
| 2 | HILO TEX300 53/120 40/2 | 0,000002358 | KG | 0,00015708% | |
| 1 | BOLSON PLTN 60 MIC | 0,019250000 | KG | 1,28239175% | |
| TOTAL | 1,5011 | KG | 100,00000000% | ||
Con el cuadro anterior calculamos el peso de una almohada, obteniendo así un peso de 1,5011 kg y con el fin de ordenar la información, determinamos que materia prima se utiliza en cada estación, con el siguiente cuadro:
| Material Pirma | Operación en la que se produce la merma |
| MICROFIBRA HCS 0,8D 3MM | 1.1 CARGADORA DE FIBRA |
| LUBRICANTE ANTIESTATICO PR-4 | 1.1 CARGADORA DE FIBRA |
| HILO PES CERRADO BCO | 2. CERRADO MANUAL |
| FILM STRETCH CRISTAL VIRGEN | 3. EMBOLSADORA |
| PLTN CRISTAL A-53CM 60MIC | 3. EMBOLSADORA |
| TIRA FUNDA DOWNPROOF MICRO FIBRA 53 | 1.2 CONFECCIONADORA DE FUNADA |
| HILO TEX300 53/120 40/2 | 1.2 CONFECCIONADORA DE FUNADA |
| BOLSON PLTN 60 MIC | 3. EMBOLSADORA |
Luego con la infomación del cuadro anterior, calculamos en base al porcentaje sobre el total y el porcentaje de merma de la operación, el porcentaje efectivo de merma en la sección.
| Secciones operativas | % de Merma por operación | MP intrudicida en la operación (en %) | % de Merma en relación a la operación que realiza |
| 1.1 CARGADORA DE FIBRA | 5% | 93,27311527% | 4,663656% |
| 1.2 CONFECCIONADORA DE FUNDA | 2% | 1,90542483% | 0,038108% |
| 2 CERRADO MANUAL | 1% | 0,00832722% | 0,000083% |
| 3. EMBOLSADORA | 0 | 4,81313268% | 0,000000% |
Cálculo de desperdicio operativo y real
| Secciones operativas | Alimentación [kg] | Desperdicios [kg] | Producciones seccionales [kg] | |||
| Recuperables | No recuperables | |||||
| 1.1 CARGADORA DE FIBRA | 114626,4299 | 5622,21111 | 109004,2188 | |||
| 1.2 CONFECCIONADORA DE FUNDA | 109048,7537 | 44,53485146 | 109004,2188 | |||
| 2 CERRADO MANUAL | 109004,2188 | 1090,042188 | 107914,1766 | |||
| 3. EMBOLSADORA | 107914,1766 | 107914,1766 | ||||
Porcentaje de desperdicio operativo = (5622,21 + 44,54+1090,042) / 107914,1766* 100 = 6,26%
Porcentaje de desperdicio real = 5666,75 / 107914,1766* 100 = 5,25%
Ritmo de trabajo
Se trabajará en un turno único turno de 8hs al día durante 22 días al mes. Además, consideraremos quince días de vacaciones en el mes de diciembre, por lo que se trabajarán 11,5 meses al año.
| Ritmo de trabajo | |||||
| Días/mes | Meses /año | Total días/año | Horas/día | total horas/año | Horas/mes |
| 22 | 11,5 | 253 | 8 | 2024 | 176 |
Capacidad Real Anual de la Maquinaria
A partir de nuestro ritmo de trabajo y la información dada por el tecnólogo de la capacidad de las maquinas y su rendimiento, calculamos la capacidad real de cada maquinaria.
| Secciones | Capacidad teórica x hora
|
Horas | Capacidad teórica
máq. x año |
Rendimiento operativo | Capacidad real
máq. x año |
| 1.1 CARGADORA DE FIBRA | 85 | 2024 | 172040 | 95% | 163438 |
| 1.2 CONFECCIONADORA DE FUNDA | 300 | 2024 | 607200 | 95% | 576840 |
| 2 CERRADO MANUAL | 60 | 2024 | 121440 | 90% | 109296 |
| 3. EMBOLSADORA | 420 | 2024 | 850080 | 98% | 833078,4 |
Determinación de la Cantidad de Máquinas y cuello de botella
| Secciones | Programa anual de producción | Capacidad real máq. x año | Cant. Máq. Necesarias | Capacidad real
seción. x año |
Aprovechamiento seccional (%) |
| 1.1 CARGADORA DE FIBRA | 76362 | 163438 | 1 | 163438 | 47% |
| 1.2 CONFECCIONADORA DE FUNDA | 72646 | 576840 | 1 | 576840 | 13% |
| 2 CERRADO MANUAL | 72616 | 109296 | 1 | 109296 | 66% |
| 3. EMBOLSADORA | 71890 | 833078,4 | 1 | 833078,4 | 9% |
Como podemos ver, el aprovechamiento seccional más alto se dio en el cerrado manual. Con cual tenemos qeu el será nuestro cuello de botella.
Determinación de la evolución de la mercadería
Tiempos de entrega y envío de las mercaderías
Para aquellos comercios/establecimientos que se dediquen a la reventa de nusetros productos, les realizaremos entregas cada 15 días .
En segundo lugar para todo aquello que sea ventas por E-commerce y ventas en nuestras páginas online, la logística referente al envío del pedido se encontrará tercerizada.
Tamaño y frecuencia de compra
La compra de materia prima se realizará cada 2 meses, sabiendo que no tenemos productos perecederos y tienen largas fechas de vencimiento y muy poco deterioro con el tiempo, siempre cuando se mantengan los estandares de cuidado estipulados .
Por lo tanto, calculamos la cantidad de materia prima con la que debemos abastecernos cada 2 meses, teniendo en cuenta que la producción bimestral es de:
71890 unidades / 11,5 meses = 6251 u/mes
Entonces, en dos meses, se venderán 6251 u/mes * 2 meses = 12502 u.
La mayoría de las materias primas serán adquiridas a proveedores nacionales, excepto algunas como la microfibra que vendrán de China. Aunque los plazos de entrega, en general rondan entre los 7 y 10 días, realizamos pedidos en cantidad cada dos meses debido a posibles problemas con la entrega o cambio en las políticas de imórtación en el país.
Contar con stock de microfibra tebdrá que ser taratada como un materia prima crítica ya que más del 90% del producto esta compuesta por ella.
A continuación adjuntamos cuales serían las demandas bimestrales de materia prima:
| Texto breve-objeto | Ctd.comp onente (UMC) | Un.medida componente | Produccion | Necesidades bimestrales | |
| MICROFIBRA HCS 0,8D 3MM | 1,4000 | KG | 12502 | 17502,8 | |
| LUBRICANTE ANTIESTATICO PR-4 | 0,000124000 | KG | 12502 | 1,550248 | |
| HILO PES CERRADO BCO | 0,000125 | KG | 12502 | 1,56275 | |
| FILM STRETCH CRISTAL VIRGEN | 0,0010 | KG | 12502 | 12,502 | |
| PLTN CRISTAL A-53CM 60MIC | 0,0520 | KG | 12502 | 650,104 | |
| TIRA FUNDA DOWNPROOF MICRO FIBRA 53 | 0,0286 | KG | 12502 | 357,5572 | |
| HILO TEX300 53/120 40/2 | 0,000002358 | KG | 12502 | 0,029479716 | |
| BOLSON PLTN 60 MIC | 0,019250000 | KG | 12502 | 240,6635 | |
Cálculos de mercadería
Evolución de la Producción
Para este caso, el período de puesta en marcha, tendrá una duración de 3 meses, durante los cuales se incrementa la producción de tal manera que al final de cada uno de los meses serán respectivamente de de 25, 50 y 100% de la producción real, llegando al final del tercer mes al estado de régimen. Cabe a clarar que para cada mes se tomará un promedio entre el valor máximo y mínimo de producción real.
a) Volumen de producción mensual en estado de régimen: 71890 unidades / 11,5 meses = 6251 u/mes.
b) Producción mensual en período de puesta en marcha:
| mes | ritmo de producción
al inicio (%) |
ritmo de producción
al final (%) |
Producción
Promedio (%) |
Producción mensual promedio (u) | Producción propuesta (u) |
| 1 | 0 | 25 | 12,5 | 6.251 | 781 |
| 2 | 25 | 50 | 37,5 | 6.251 | 2.344 |
| 3 | 50 | 100 | 75 | 6.251 | 4.688 |
| total | 7.814 |
Volumen de producción durante el resto del año = 6251 u. * (11,5 - 3) = 53136 u. (se realizan redondeos, de lo contarrio daría 53133 u)
Volumen de producción año 1= 53136 + 7814= 60950
| Volumen de producción durante el resto del año | 53.136 |
| Volumen de producción año 1 | 60.950 |
| Volumen de pruducción anual en los años 2 al n | 71.890 |
Stock Promedio de Producto Elaborado
Las entregas de producto elaborado se realizaran cada 2 semanas, obteniendo así un total aproximado de 25 entregas al año. Dando un resultado de 71890 u. / 25 = 2876 u
Al ser una empresa nueva, el stock va a variar entre 0 y 2876 unidades, o sea un stock promedio elaborado de 1438 unidades.
Evolución de Ventas
Sabiendo que las ventas se mantienen constantes, exceptuando el período de puesta en marcha tenemos que
a)Ventas año 1 = 59512
b)Ventas año 2 = 71890 u.
Consumo de Materia Prima para el Programa de Producción y Formación de la Mercadería en Curso y Semielaborada
El ciclo de elaboración demanda 0,04 horas por unidad (desde el ingreso de la materia prima al sector operativo de hasta la salida del producto al depósito de elaborado).
Por lo tanto, la cantidad de ciclos de elaboración anuales será de: 2024 horas / 0,04 horas = 50600.
Año 1 a) Mermas y desperdicios Siendo:
- Desperdicio no recuperable = 4,7%
- Desperdicio no recuperable durante el período de puesta en marcha = 4,7% * 2 = 9,4%. Se plantea que en el período de puesta en marcha son el doble los desperdicios no recuperables
- MP utilizada por unidad = 1,501 kg
| u. | kg | merma | MP (kg) | ||
| Consumo MP en PEM | 7.814 | 11.730 | 1,0940 | 12.833 | |
| Consumo MP en el resto | 53.136 | 79.763 | 1,0470 | 83.513 | |
| Total MP año 1 | 96.346 | ||||
| Volumen de prod. Año 1 | 91.492 | ||||
| Desperdicio no recuperable | 4.853 | ||||
Mercadería en curso y semielaborada
- Alimentación de la sección 1 (en kg) = 71890u. * 1,501 kg = 114,626 kg
- Ciclo de elaboración = 50600
Consumo de MP en mercadería en proceso = 2,27kg
c) Total consumo MP = Total MP año 1 + Consumo MP en mercadería en proceso = 96346kg + 2,27 kg = 96348,27 kg
Años 2 al 5 (se aplican redondeos para poder calcular)
- Desperdicio no recuperable = 5,25%
- Ventas año 2 al 5 (en kg) = 71890 u * 1,501 kg / u. =107906,89 kg
Desperdicio no recuperable (en kg) = 107906,89 kg * 5,25% = 5665,11 kg
Total consumo mp= 113.572 kg
Stock Promedio de Materia Prima y Programa de compras
- En el año cero solo se comprará la materia prima necesaria para un mes de producción, siendo almacenada hasta que se empieze a producir.
- Partiendo de que el consumo de materias primas anual es de 113.572 kg, calculamos el consumo mensual al dividir el valor anteriror por 11,5. Siendo así el consumo mensusual= 9875,83 kg .
- Se hacen compras cada dos meses, por lo cual tendremos seis compras anuales.
- Durante el mes de enero se cierran 15 días y la empresa no fabricará ni producirá bienes.
- Como politíca de stock de seguridad, la empresa contará con un mes de la materia prima necesaria.
- Stock necesario para enero= Stock de seguridad + Consumo de MP del mes= 4937,91 Kg + 9875,83 Kg = 14813,74 Kg
| Stock Inicial | Consumo | Stock despues de consumo | Compra | Stock final | |
| Enero | 14.813,74 | 9875,83 | 4.937,91 | 19.751,66 | 24.689,57 |
| Febrero | 24.690 | 9875,83 | 14.813,74 | 14.813,74 | |
| Marzo | 14.814 | 9875,83 | 4.937,91 | 19.751,66 | 24.689,57 |
| Abril | 24.690 | 9875,83 | 14.813,74 | 14.813,74 | |
| Mayo | 14.814 | 9875,83 | 4.937,91 | 19.751,66 | 24.689,57 |
| Junio | 24.690 | 9875,83 | 14.813,74 | 14.813,74 | |
| Julio | 14.814 | 9875,83 | 4.937,91 | 19.751,66 | 24.689,57 |
| Agosto | 24.690 | 9875,83 | 14.813,74 | 14.813,74 | |
| Septiemble | 14.814 | 9875,83 | 4.937,91 | 19.751,66 | 24.689,57 |
| Octuble | 24.690 | 9875,83 | 14.813,74 | 14.813,74 | |
| Noviembre | 14.814 | 9875,83 | 4.937,91 | 19.751,66 | 24.689,57 |
| Diciembre | 24.690 | 9875,83 | 14.813,74 | 14.813,74 | |

Cuadro de evolución de mercaderias
| Unidad | Año 0 | Año 1 | Año 2 | |
| Ventas | unidades | 59.512 | 71.890 | |
| Stock promedio de elaborados | unidades | 1.438 | 1.438 | |
| Producción | unidades | 60.950 | 71.890 | |
| Mermas y desperdicios | kg | 4.853 | 5.667 | |
| Mercadería en proceso | kg | 2,265 | 2,265 | |
| Consumo de materias primas | kg | 65.806 | 77.557 | |
| Stock promedio de materia prima | kg | 9.877 | 9.877 | 9.877 |
| Compras de materia prima | kg | 9.877 | 75.682 | 77.557 |
Determinación del Personal

Nuestra empresa está conformada por un equipo de 10 personas, distribuidas estratégicamente para cubrir todas las áreas clave del negocio, garantizar la eficiencia en la producción de almohadas y la atención a nuestros clientes. Cada miembro del equipo desempeña un rol específico dentro de la organización:
1- Gerente General
- Tareas: Tiene a su cargo la supervisión integral de todas las áreas de la empresa, velando por el cumplimiento de los objetivos generales. Define la estrategia de la organización, establece políticas internas y externas para con los clientes/proveedores/etc, y coordina el funcionamiento de producción, ventas, calidad y administración. Actúa como representante institucional frente a proveedores, clientes estratégicos y organismos externos.
- Formación: Profesional graduado en Ingeniería Industrial o Licenciatura en Administración de Empresas, con sólida experiencia en liderazgo, planificación estratégica y gestión.
1- Administrativo Contable
- Tareas: Gestiona facturación, pagos a proveedores, conciliaciones bancarias, liquidación de sueldos, registros contables y documentación impositiva. Colabora en la elaboración de presupuestos y reportes financieros.
- Formación: Licenciado en administración, contabilidad o carreras afines. Conocimiento de software contable o de gestión, y normativa impositiva local.
1- Administrativo de Comercialización
- Tareas: Atiende a clientes, toma pedidos, emite remitos, realiza el seguimiento de ventas y relación con clientes, y coordina acciones comerciales con mayoristas y distribuidores. Gestiona reclamos y el servicio postventa.
- Formación: Licenciado en administración, marketing o carreras afines. Buen manejo de herramientas digitales y orientación al cliente.
1- Jefe de Planta / Responsable de Calidad
- Tareas: Coordina y supervisa las operaciones productivas diarias. Controla calidad en cada etapa del proceso (medidas, peso, costuras, etiquetado). Registra y controla las no conformidades y propone mejoras. Evalúa la productividad de operarios y cumplimiento de estándares técnicos.
- Formación: Puede contar con alguna tecnicatura afín a la operación (Industrial, mecánica, electrónica, etc). Conocimientos en sistemas de calidad y control de procesos.
1- Operario LO01 – Logística, Depósito, Apilado y Paletizado
- Tareas: Recibe y almacena materias primas. Abastece las líneas de producción. Organiza el almacenamiento de producto terminado y realiza la preparación y despacho de pedidos. Apila almohadas embolsadas en bolsones y pallets.
- Formación: Secundario completo. Deseable experiencia previa en logística interna o depósito. Conocimientos básicos de stock, identificación de productos y manejo de pallets.
1- Operario CF01 – Confección de Fundas
- Tareas: Opera la máquina que confecciona automáticamente las fundas (ME-320). Verifica la alimentación de tela, la calidad de costuras laterales y transversales, la ubicación de las etiquetas y que los cortes sean precisos. Detecta fallas o desajustes y realiza ajustes básicos.
- Formación: Secundario técnico o experiencia en operación de maquinaria textil. Se valora formación en mecánica o alguna tecnicatura afín, y que esté familiarizado con maquinaria del tipo industrial.
1- Operario CA01 – Cargador de Fibra
- Tareas: Carga, opera y controla la máquina automática de relleno (CB-150). Asegura que cada almohada reciba la cantidad correcta de fibra. Verifica la limpieza y operatividad del equipo.
- Formación: Secundario completo, idealmente con orientación técnica. Se requiere formación práctica en operación y mantenimiento básico de maquinaria industrial.
2- Operarios CM01 y CM02 – Cierre Manual
- Tareas: Realizan el cierre final de cada almohada rellenada mediante costura manual con máquina de coser industrial (JUKI). Controlan que las costuras queden firmes, sin hilos sueltos y que la etiqueta esté bien colocada
- Formación: Formación práctica en costura. Experiencia en manejo de máquinas rectas de costura.Operario EM01 – Embolsado
- Tareas: Opera la máquina embolsadora (ME-305). Carga las almohadas, controla el ciclo de embolsado, compresión y termosellado. Verifica que el producto esté correctamente envuelto y etiquetado, y que las bolsas estén limpias y selladas.
- Formación: Secundario completo. Capacitación técnica para el manejo de maquinaria automatizada. Conocimientos básicos en mantenimiento preventivo y control de calidad.
Listado de Equipos Auxiliares, Muebles y Útiles

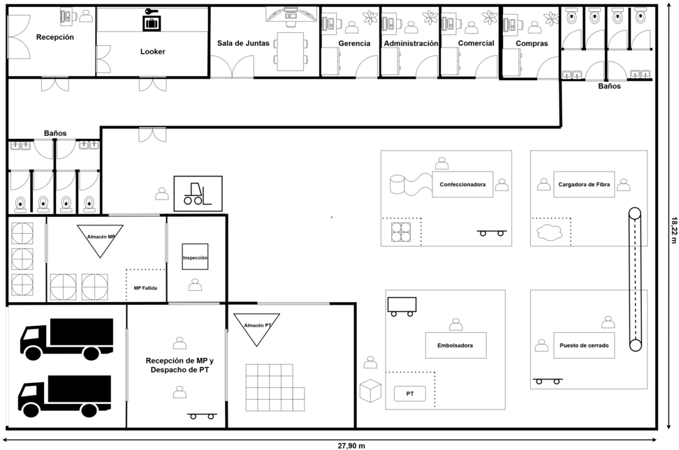
Anteproyecto de Planta.
Plano de la Planta mostrando la distribución de las distintas áreas (Producción, Administración y Comercialización).

Especificaciones técnicas de la planta:
Escala: 1:150
Unidad de longitud de referencia: centímetros (cm) - Medidas del plano expresadas en cm.
Superficie total del terreno: 509 m2
Superficie total cubierta/construida: 481,84 m2 (consideramos como Superficie Total Construida o Cubierta a toda área cubierta (techada), medidas desde el perímetro exterior de las paredes).
Superficie total descubierta: 27,16 m2
Cuadro de superficies por ambiente:
| Sector | Ambiente | Alto (m) | Ancho (m) | Superficie (m2) |
|---|---|---|---|---|
| Administrativo | Recepción | 3,253 | 3,84 | 12,49 |
| Administrativo | Locker | 3,253 | 4,98 | 16,2 |
| Administrativo | Baños | 3,253 | 4,05 | 13,17 |
| Administrativo | Gerencia | 3,253 | 2,596 | 8,44 |
| Administrativo | Administración | 3,253 | 2,596 | 8,44 |
| Administrativo | Comercial | 3,253 | 2,596 | 8,44 |
| Administrativo | Compras | 3,253 | 2,596 | 8,44 |
| Administrativo | Sala de juntas | 3,253 | 4,8 | 15,61 |
| Planta | Baños | 3,253 | 4,05 | 13,17 |
| Planta | Almacén de MP | 6,89 | 3,82 | 26,32 |
| Planta | Inspección | 2,57 | 3,82 | 9,82 |
| Planta | Recepción y despacho de MP | 4,27 | 5,37 | 22,93 |
| Planta | Almacén de PT | 5,52 | 5,37 | 29,64 |
| Planta | Producción | 59,03 | 14,92 | 880,78 |
| Planta | Estacionamiento | 5,16 | 5,37 | 27.71 |
Plano mostrando el recorrido de los materiales.

El proceso comienza con la recepción de la mercadería en el área de "Recepción de Materia Prima (MP) y Despacho de Producto Terminado (PT)". Una vez recibida, la mercadería pasa al área de "Inspección", donde se verifica que cumpla con los estándares de calidad, revisando posibles unidades fallidas o fuera de las tolerancias requeridas.
Según su condición, el material va a:
- Almacén de MP (si está en buen estado), clasificándose según su tipo de almacenamiento:
- Almacenamiento especial anti-humedad (para materiales sensibles).
- Almacenamiento normal (para el resto).
- Área de MP Fallada (si presenta defectos).
Posteriormente, la materia prima aprobada se traslada a las áreas de producción a:
- Confección (flecha amarilla).
- Carga de Fibra (flecha azul
Luego, el producto semi-elaborado avanza mediante una cinta transportadora al área de "Cerrado" y, finalmente, a "Embolsado", donde se prepara para su almacenamiento. El producto terminado se deposita en el Almacén de PT hasta su despacho a los clientes, el cual se realiza nuevamente a través del área de "Recepción de MP y despacho de PT".
Cronograma de ejecución
A continuación se detalla el cronograma de ejecución para la puesta en marcha de Fadealar. El mismo se encuentra estructurado en tres grandes etapas: preinversión, instalación y explotación, y contempla todas las actividades necesarias desde la planificación inicial hasta el inicio efectivo de la producción.

Para el periodo de Preinversión se debe realizar el estudio de factibilidad técnica y económica del proyecto, así como en la obtención de la aprobación externa para avanzar con el proyecto.
Una vez que se apruebe el proyecto comenzara la etapa de Periodo de Instalación. Se deberá definir el equipo responsable, se elaborará el layout de la planta y se gestionará el presupuesto. También se avanzará con la elección del espacio físico para instalar la fábrica, sabemos que por la Matriz de localidad nos convendría Munro.
Posterior a lo mencionado se comenzarán con las adaptaciones necesarias para poner en condiciones optimas la fabrica. Será necesario importar determinadas máquinas desde España, por lo que su gestión deberá iniciarse con anticipación debido a los posibles plazos de demora de llegada. Con su arribo se comenzara con el montaje e instalación . En paralelo se procederá con la selección del personal especializado y capacitación de inducción.
Con las instalaciones finalizadas y el personal capacitado, comenzaremos con la puesta en marcha, lo que nos permitirá probar los procesos productivos, ajustar parámetros y garantizar los estándares de calidad. Estimamos que esta etapa nos demandará aproximadamente cuatro meses hasta alcanzar el régimen operativo.
Referencias
● Fichas técnicas de máquinas Merello (embolsadora ME-305 y confeccionadora ME-320) merello.esmerello.es.
● Especificaciones de rendimiento de la embolsadora ME-305 bid-on-equipment.com y de la confeccionadora ME-320 exhibitorsearch.messefrankfurt.com.
● Línea automática de llenado de almohadas Masias – datos de capacidad wotol.com.
● Información de Global Systems Group sobre la velocidad de empaque de almohadas gsgcompanies.com.
● Precio de referencia de una embolsadora Merello ME-305 usada bid-on-equipment.com. Costos aproximados de máquinas de coser industriales Juki pr.ebay.com.
● Manuales y catálogo de maquinaria de empaque Merelloexhibitorsearch.messefrankfurt.comexhibitorsearch.messefrankfurt.com (control PLC, opciones de seguridad y automatización).
● Recomendaciones generales de seguridad industrial en maquinaria textil y de empaquemerello.eses.scribd.com.
● https://merello.es/es/maquina-fundas-almohadas-me-320/#:~:text=,izquierda%2C%20soporte%20para%20doble%20rollo