Archivo:Lay out planta matafuegos.png

De Evaluación de Proyectos
Revisión del 19:42 7 ago 2025 de RacubianMicaela (discusión | contribs.)
(difs.) ← Revisión anterior | Revisión actual (difs.) | Revisión siguiente → (difs.)
Ir a la navegación Ir a la búsqueda

Archivo original(613 × 731 píxeles; tamaño de archivo: 53 kB; tipo MIME: image/png)

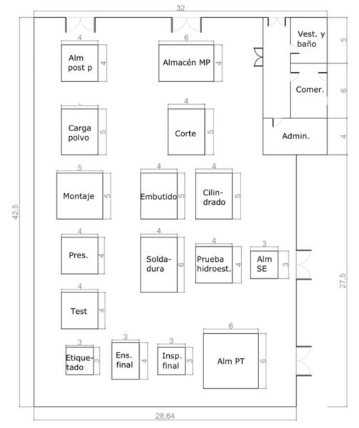
Lay out de la planta acotado

Historial del archivo

Haz clic sobre una fecha y hora para ver el archivo tal como apareció en ese momento.

Fecha y horaMiniaturaDimensionesUsuarioComentario
actual19:42 7 ago 2025Miniatura de la versión del 19:42 7 ago 2025613 × 731 (53 kB)RacubianMicaela (discusión | contribs.)

No hay páginas que enlacen a este archivo.

Metadatos