2025/Grupo10/DimensionamientoFisico
Determinación de la localización
Macrolocalización
Tal como se definió en la segmentación geográfica del proyecto, la comercialización del producto se enfocará en cuatro de las principales áreas urbanas del país: Ciudad Autónoma de Buenos Aires, Gran Buenos Aires, Ciudad de Córdoba y Rosario.
No obstante, en la Ciudad Autónoma de Buenos Aires se ha identificado una tendencia creciente de relocalización de industrias hacia parques industriales ubicados en el Gran Buenos Aires. Esta dinámica responde a diversos factores, tales como la carga impositiva, la escasez de espacio físico para el crecimiento de las plantas industriales, y la implementación de regulaciones ambientales más estrictas por parte del Gobierno de la Ciudad, orientadas a reducir la contaminación y promover la radicación de empresas de servicios no contaminantes en su territorio.
En este contexto, se considera conveniente localizar la planta industrial en alguna de las siguientes zonas: Gran Buenos Aires, Ciudad de Córdoba o Rosario. Para cada una de estas regiones se ha seleccionado un parque industrial específico, en función de criterios técnicos y estratégicos tales como ubicación, accesibilidad, infraestructura de servicios y beneficios ofrecidos. Las opciones consideradas son:
- Parque Industrial Pilar, ubicado en Pilar, Provincia de Buenos Aires.
- Parque Industrial Manfredi “Ruta M”, localizado en Manfredi, en las afueras de la Ciudad de Córdoba.
- Parque Industrial “Ciudad Industria”, emplazado en Rosario, Provincia de Santa Fe.
Microlocalización
Para llevar a cabo el análisis para la decisión de la localización entre las cuatro zonas consideradas, se realizó un análisis de los condicionantes más importantes a la hora de construir una fábrica de estas características:
Medios y Costos de Transporte: En cuanto al abastecimiento de materias primas, el proyecto contará con dos proveedores principales. Por un lado, la empresa Ventachap S.A., encargada del suministro de los tubos de acero que conforman la estructura de las sillas, así como de las chapas utilizadas en los respaldos y asientos, la cual se encuentra en la ciudad de Rosario, Provincia de Santa Fe. Por otro lado, la pintura epoxi utilizada para el recubrimiento de las sillas será provista por la empresa Sherwin-Williams, la cual dispone de puntos de venta en cada una de las ciudades consideradas para la instalación de la planta (Gran Buenos Aires, Ciudad de Córdoba y Rosario).
En relación con los distribuidores comerciales, se identificaron puntos de distribución en cada una de las regiones donde se proyecta comercializar el producto. La mayor concentración de distribuidores se encuentra en el Gran Buenos Aires y en la Ciudad Autónoma de Buenos Aires, ya que, en conjunto, estos dos mercados representan el porcentaje más elevado de las ventas totales estimadas para el proyecto.
En cuanto a los medios de transporte, se hace referencia a la logística tanto de la materia prima como de los productos terminados. Considerando las dimensiones y el peso de la silla de exterior fabricada en acero SAE 1045, así como la relativa proximidad entre la planta y los principales centros de comercialización (CABA, GBA, Córdoba y Rosario), se optará por el transporte terrestre mediante camiones.
De acuerdo con datos publicados por la Asociación de Transporte de Cargas (AMITRAC), la tarifa sugerida para el traslado de mercaderías asciende a $1.480 por kilómetro + IVA (valor de referencia correspondiente a marzo de 2025). Para efectos de este estudio, y con el objetivo de facilitar la comparación entre las distintas alternativas de localización, se tomará dicho valor como costo promedio unitario de transporte, aplicable a todas las opciones consideradas.
El desarrollo de los cálculos se adjunta en el Excel, en la hoja de Costos Logísticos, donde se puede observar que los costos logísticos totales de cada ciudad son: Gran Buenos Aires $2.427.250,32, Ciudad de Córdoba $4.839.637,00, y Rosario $2.369.228,40. La ciudad de Rosario es la región que presenta los menores costos de transporte, debido a que el parque industrial fue seleccionado por su cercanía a los proveedores.
Factores Ambientales: En el caso de los lugares que estamos analizando, las condiciones climáticas son similares, dado a que todos pertenecen a la región pampeana por su cercanía geográfica, por lo que ninguna zona presenta ventajas o desventajas en lo que al clima respecta. Se caracterizan por temperaturas templadas con estaciones bien diferenciadas entre sí, pero ninguna con características extremas que puedan perjudicar tanto a la fábrica como al presentismo de los operarios, en circunstancias normales.
Costo y Disponibilidad de Terrenos: Para la ubicación de la fábrica consideramos conveniente realizarla en un parque industrial, ya que estos cuentan con infraestructura como calles pavimentadas y señalizadas para facilitar el acceso y transporte de mercaderías; suministro continuo de agua, energía eléctrica, gas natural, telecomunicaciones, tratamiento de residuos, control de acceso, vigilancia y sistemas de seguridad para proteger las instalaciones y los bienes, entre otras. De esta manera, la construcción de la fábrica solo implicaría la construcción de la nave industrial y no habría que realizar adaptaciones de las calles lindantes, contratar seguridad, etc.
Así mismo, en la Argentina hay beneficios fiscales en los parques industriales, como la exención del pago de las tasas municipales, y, además, se otorga la posibilidad de financiamiento de créditos a tasas bajas para la compra de bienes de capital. Estas ventajas se traducen en una mayor competitividad de la empresa.
Los costos de la instalación en un parque industrial varían según la zona de la siguiente manera:
| Ciudad | Costo Promedio de Instalación |
| Ciudad de Córdoba | Entre 100 y 50 USD/m2 |
| Rosario | Aproximadamente 100 USD/m2 |
| Gran Buenos Aires | Entre 120 y 170 USD/m2 |
Disponibilidad y Confiabilidad de los Sistemas de Apoyo: En el caso del Parque Industrial Pilar se ofrecen los siguientes servicios:
- Calles pavimentadas para camiones
- Varios accesos
- Provisión de agua potable
- Tendido de red eléctrica
- Iluminación pública
- Instalación de gas
- Control de acceso y alambrado olímpico
- Colector de residuos
- Transporte público
- Mantenimiento y limpieza
En el caso del Parque Industrial Manfredi “Ruta M”, se ofrecen los siguientes servicios:
- Energía: Alumbrado público con distribución de media y baja tensión
- Gas: Infraestructura gasífera con red de distribución interna
- Agua y Cloacas: Distribución interna con bombeo e impulsión, y servicio contra incendios
- Comunicación: Fibra óptica y acceso a internet
- Logística: Pórtico de ingreso, cordón cuneta y pavimento, y forestación perimetral y parquización
- Seguridad: Casilla de ingreso, cerco perimetral y video vigilancia
En el caso del Parque Industrial “Ciudad Industria”, se ofrecen los siguientes servicios:
- Múltiples accesos al parque
- Calles pavimentadas con cordón cuneta montable
- Alumbrado público en áreas comunes
- Desagües pluviales
- Red de desagües cloacales
- Red hidrante contra incendios
- Red de agua potable
- Suministro eléctrico de media y baja tensión
- Red de fibra óptica y wifi público
Posibilidad de Tratar Desechos: El proceso productivo presenta dos tipos de residuos. Por un lado se genera scrap metálico durante las etapas de corte del acero, el cual no requiere de tratamientos específicos antes de su disposición final. Este material residual, al tratarse exclusivamente de recortes de acero SAE 1045 sin contaminantes añadidos, puede ser gestionado mediante su recolección, almacenamiento temporal y posterior venta o entrega a recicladores autorizados, cumpliendo con la normativa vigente en materia de gestión de residuos industriales no peligrosos. Sin embargo, durante la etapa de pintura se genera un excedente de producto, y la pintura epoxi, según la normativa vigente, está clasificada como residuo peligroso. Por este motivo, la gestión y disposición de este residuo debe ser tercerizada a empresas especializadas, salvo que el parque industrial cuente con un servicio específico para su tratamiento.
Disponibilidad y Costo de la Mano de Obra Idónea: En todas las regiones consideradas para la localización de la fábrica se dispone de una sólida oferta académica, conformada por universidades y centros de formación técnica superior que brindan carreras y tecnicaturas vinculadas al sector manufacturero. Entre ellas se destacan las Ingenierías Mecánica e Industrial, la Licenciatura en Administración de Empresas, Marketing y otras disciplinas que resultan fundamentales para el desarrollo y la gestión integral de la empresa.
Además, todas las zonas cuentan con disponibilidad de mano de obra operativa, con perfiles adecuados para las tareas requeridas en la planta. Cabe destacar que los procesos productivos asociados a la fabricación de sillas de acero no demandan un alto grado de cualificación, exceptuando el proceso de soldadura, ya que las máquinas utilizadas presentan un bajo nivel de complejidad tecnológica, lo cual facilita el entrenamiento y adaptación del personal.
En cuanto a los costos laborales, no se observan diferencias significativas entre las regiones analizadas, ya que todas se rigen por el Sueldo Mínimo Vital y Móvil.
Comunicación: En todos los parques industriales que se están analizando, se ofrecen servicios de internet, fibra óptica, telefonía o una variante de ellas.
Condiciones Sociales y Culturales: Pilar, ubicado en el norte del Gran Buenos Aires, cuenta con una población aproximada de 400.000 habitantes, caracterizada por ser una comunidad joven, con alrededor del 28% de la población menor de 20 años y aproximadamente un 62% en edad económicamente activa (20-64 años). La zona dispone de diversas instituciones educativas, incluyendo escuelas técnicas y centros de formación profesional, así como una creciente proporción de personas con educación terciaria y universitaria en áreas técnicas y tecnológicas. La cercanía a localidades como Escobar y Campana, que albergan universidades y centros de capacitación técnica, representa una fuente valiosa de mano de obra calificada para el partido. Además, Pilar cuenta con una infraestructura de transporte eficiente, con conexiones viales de alta calidad, acceso a la red ferroviaria y servicios de transporte público que facilitan el traslado diario de trabajadores hacia y desde la región.
En el caso de Rosario, se cuenta con una población de aproximadamente 1.300.000 habitantes, presentando una estructura demográfica favorable para la instalación de una fábrica, con un 65% de su población en edad económicamente activa. La ciudad cuenta con altos niveles educativos, numerosas instituciones técnicas y universidades, proporcionando una fuerza laboral bien capacitada. Además, su robusta infraestructura de transporte, incluyendo carreteras y vías férreas facilita el desplazamiento de trabajadores, haciendo de Rosario una opción viable para la instalación de la fábrica.
Manfredi, una localidad en la provincia de Córdoba, forma parte del departamento Río Segundo. A pesar de su tamaño reducido, su proximidad a la ciudad de Córdoba, que tiene una población de aproximadamente 1.500.000 habitantes, proporciona ventajas significativas para la instalación de la fábrica. La ciudad de Córdoba tiene una población diversa y una considerable proporción en edad económicamente activa, con un 60% de su población entre los 20 y 64 años. El nivel educativo en la región es alto, con numerosas instituciones educativas, incluyendo escuelas secundarias técnicas, centros de formación profesional y varias universidades de prestigio en la ciudad de Córdoba. Esto asegura una fuerza laboral bien capacitada, con una presencia significativa de personas con educación terciaria y universitaria, especialmente en áreas técnicas y tecnológicas. La infraestructura de transporte en Manfredi y sus alrededores es adecuada, con buenas conexiones de carreteras que facilitan el acceso a la ciudad de Córdoba y otras localidades vecinas. Además, el transporte público es eficiente, permitiendo el desplazamiento diario de trabajadores desde Córdoba y otras áreas circundantes hacia Manfredi.
Consideraciones Legales y Políticas: Cada provincia y municipalidad cuenta con su respectiva legislación a seguir para la instalación de una industria, por lo que los requisitos y tiempos pueden variar de una localidad a otra, sin embargo, entre las regiones analizadas los requisitos y tiempos no presentan mucha variación. Sin embargo, los parques industriales suelen estar eximidos del pago de impuestos provinciales o municipales, y la variación entre las regiones analizadas se da de la siguiente manera:
En Pilar, Provincia de Buenos Aires, existe un régimen de exención del Impuesto a las Ganancias por un período de hasta 10 años. Además, se puede acceder a una exención del 100% sobre las partidas inmobiliarias que estén directamente vinculadas al establecimiento promovido. En ciertos casos, también se aplican exenciones del Impuesto de Sellos y reducciones en los impuestos a los automotores.
En Rosario, Provincia de Santa Fe, las empresas industriales están exentas del 100% del Impuesto sobre los Ingresos Brutos durante los primeros 10 años a partir de la fecha de puesta en marcha de la actividad, además de estar exentas de otros impuestos provinciales, como el Impuesto Inmobiliario, el Impuesto de Sellos y la Patente Única sobre Vehículos durante el período de exención del Impuesto sobre los Ingresos Brutos.
En la Ciudad de Córdoba, Provincia de Córdoba, se cuenta con la exención del Impuesto Inmobiliario por diez años sobre los inmuebles en los que se desarrolle la actividad industrial, la exención del Impuesto sobre los Ingresos Brutos, sobre los ingresos provenientes de la venta de bienes y servicios producidos en el parque industrial, y la exención del Impuesto de Sellos, a todos los actos, contratos e instrumentos que se utilicen para el establecimiento de la fábrica. Así mismo se cuenta con las exenciones municipales de la Tasa de Obras Sanitarias, la Tasa de Red de Alumbrado Público, y la Tasa de Higiene y Seguridad, todas ellas por el plazo de cinco años.
Matriz de localización
A continuación se puede ver la Matriz de Localización, donde se puede observar que la mejor localización para la fábrica es en Ciudad Industrial, Rosario. Según los criterios de puntuación, esta localidad es la que presenta mejores ventajas competitivas para la ubicación de la fábrica, diferenciándose principalmente en los costos logísticos de transporte.
| Matriz de Localización | |||||||
|---|---|---|---|---|---|---|---|
| Necesidades | Ponderación | Alternativas de Localización | |||||
| Parque Industrial Pilar (Provincia de Buenos Aires) | Ruta M (Ciudad de Córdoba) | Ciudad Industrial (Rosario) | |||||
| Calificación Individual | Puntuación | Calificación Individual | Puntuación | Calificación Individual | Puntuación | ||
| Costos del Transporte | 20 | 7 | 140 | 0 | 0 | 10 | 200 |
| Factores Ambientales | 5 | 10 | 50 | 10 | 50 | 10 | 50 |
| Costo y Disponibilidad de Terrenos | 20 | 0 | 0 | 5 | 100 | 10 | 200 |
| Disponibilidad y Confiabilidad de los Sistemas de Apoyo | 10 | 10 | 100 | 10 | 100 | 10 | 100 |
| Posibilidad de Tratar Desechos | 10 | 5 | 50 | 0 | 0 | 0 | 0 |
| Disponibilidad y Costo de Mano de Obra Idónea | 15 | 10 | 150 | 10 | 150 | 10 | 150 |
| Comunicación | 10 | 10 | 100 | 10 | 100 | 10 | 100 |
| Condiciones Sociales y Culturales | 5 | 10 | 50 | 10 | 50 | 10 | 50 |
| Consideraciones Legales y Políticas | 5 | 5 | 25 | 5 | 25 | 5 | 25 |
| TOTALES | 100 | 665 | 575 | 875 | |||
Definición Técnica del Producto
Planos y/o Dibujos




Listado de Materiales (BOM)

| ITEM | CÓDIGO | DENOMINACIÓN | NIVEL | CANT. | UNIDAD | |||
| 1 | 2 | 3 | 4 | |||||
| 1 | AC/T-01 | *Tubo largo | x | 1 | Unidades | |||
| S/N | AA01-11 | - Estructura central | x | 1 | Unidades | |||
| 2 y 3 | AC/T-03 | *Tubo corto | x | 2 | Unidades | |||
| 4 y 5 | AC/P-02 | *Láminas apoyabrazos | x | 2 | Unidades | |||
| S/N | AA01-12 | - Apoyabrazos | x | 2 | Unidades | |||
| 6 | AC/T-02 | *Tubo medio | x | 1 | Unidades | |||
| S/N | AA01-00 | # Patas traseras | x | 1 | Unidades | |||
| S/N | AA01-01 | # Subconjunto estructural | x | 1 | Unidades | |||
| 7 - 14 | AC/P-01 | # Láminas | x | 8 | Unidades | |||
| 15 | P/003 | # Pintura Epoxi | x | 50,6 | gramos | |||
| S/N | AA01-0000 | – Silla buenos Aires | x | 1 | Unidades | |||
Especificaciones Técnicas
Silla para uso exterior fabricada íntegramente en acero SAE 1045. Cuenta con estructura tubular curvada, asiento y respaldo de láminas de acero, y apoyabrazos integrados.
Materiales
- Estructura completa: Acero al carbono medio SAE 1045
- Tubos estructurales: Tubo redondo de acero SAE 1045 de diámetro 1’ y espesor 0,9 mm
- Láminas del asiento y respaldo: Lámina de acero SAE 1045 de espesor 0,9mm[1]
- Apoyabrazos: Acero SAE 1045 espesor 0,9mm
Composición química del acero SAE 1045
- Carbono (C): 0.43 – 0.50 %
- Manganeso (Mn): 0.60 – 0.90 %
- Fósforo (P): ≤ 0.040 %
- Azufre (S): ≤ 0.050 %
Dimensiones
- Altura total: 72 cm
- Altura del asiento al piso:
- Parte trasera: 33 cm
- Parte delantera: 41cm
- Altura del asiento a apoyabrazos: 20 cm
- Distancia entre patas (delanteras y traseras): 74 cm
- Largo total: 87 cm
- Distancia entre apoyabrazos: 76 cm
- Ancho entre patas: 63 cm
- Ancho entre apoyabrazos: 71 cm
- Ancho total: 76 cm
- Inclinación del respaldo: 113°
- Láminas: 12,13 x 70 x 0,09 cm
Capacidad de carga: 120 kg
Peso neto: 5,9 kg
Cantidad apilable: Hasta 6 unidades (altura apiladas 102cm)
Acabado: Pintura en polvo epoxi
Normas Aplicables
Según la Ley de Higiene y Seguridad en el Trabajo N.º 19.587 y su reglamentación (Decreto 351/79), la fábrica debe garantizar[2]:
- Uso de elementos de protección personal para los trabajadores.
- Ventilación adecuada en zonas de pintura, soldadura o pulido.
- Señalización, salidas de emergencia y control de incendios.
- Control de niveles de ruido y manipulación de cargas pesadas.
La Ley Nacional 24.051 de Residuos Peligrosos, reglamentada por el Decreto 831/93 y de aplicación en todo el territorio argentino regula la generación, manipulación, transporte, tratamiento y disposición final de residuos considerados peligrosos por su potencial impacto ambiental y en la salud humana. Según el Anexo I y Anexo II de la norma, se consideran residuos peligrosos, entre otros, los desechos provenientes de la producción y utilización de tintas, colorantes, pigmentos, pinturas, lacas o barnices, así como también aquellos generados en el tratamiento de superficies de metales y plásticos, actividades presentes en nuestros procesos productivos. Por este motivo, se debe garantizar una gestión ambiental adecuada de estos residuos, incluyendo su almacenamiento seguro, transporte autorizado, disposición final controlada y registración ante la autoridad ambiental correspondiente.
Características del Producto
La silla se presenta como un producto terminado, diseñado para resistir condiciones climáticas adversas como la exposición continua al sol, la lluvia y la humedad, sin comprometer su integridad ni funcionalidad. Para asegurar su durabilidad, se emplearán metales tratados con recubrimientos anticorrosivos, como pintura en polvo, junto con procesos de soldadura y fijación de alta precisión que garanticen la solidez estructural. Se destacan especialmente su resistencia, capaz de soportar el peso de una persona adulta sin fallas ni deformaciones; su estabilidad, que evita vuelcos o desplazamientos accidentales; y la firmeza de sus uniones, que deben permanecer seguras con el uso intensivo. La terminación superficial será uniforme, sin rebabas, bordes filosos ni imperfecciones que puedan comprometer la seguridad o la estética del producto. Asimismo, es fundamental que el recubrimiento esté correctamente adherido, no solo para prevenir la corrosión, sino también para ofrecer una superficie segura y agradable al tacto. Se espera que el producto mantenga estas propiedades incluso con un uso frecuente y prolongado, sin oxidarse ni deteriorarse significativamente, cumpliendo así con los estándares de funcionalidad, confort y seguridad requeridos para su uso en exteriores.
Plan de Ensayos
El plan de ensayos propuesto contempla una serie de pruebas destinadas a verificar que la silla cumpla con los estándares de calidad, seguridad y durabilidad requeridos para su uso en exteriores. Se realizarán ensayos de resistencia estructural mediante pruebas de carga estática, con el objetivo de comprobar que el producto soporte el peso previsto sin sufrir deformaciones ni fallas. A esto se suman pruebas de estabilidad, destinadas a asegurar que el diseño impida vuelcos o desplazamientos accidentales durante su uso. Las uniones y soldaduras serán verificadas mediante inspección visual y, en muestras seleccionadas, a través de ensayos mecánicos como tracción o doblado, garantizando su firmeza y confiabilidad estructural.
Asimismo, se llevará a cabo una inspección minuciosa de bordes y terminaciones para confirmar la ausencia de rebabas, terminaciones filosas u otros elementos que puedan representar un riesgo para el usuario. El recubrimiento superficial también será objeto de control, evaluando su uniformidad y resistencia, especialmente en lo relativo al tratamiento anticorrosivo mediante pintura en polvo.
Este conjunto de ensayos se complementará con pruebas de durabilidad en exteriores, donde se simulará la exposición prolongada a condiciones climáticas adversas, como radiación solar y humedad, para observar el comportamiento del material y del recubrimiento a lo largo del tiempo. Finalmente, se realizarán evaluaciones ergonómicas con usuarios reales, a fin de validar el confort del asiento y del respaldo, y garantizar que el producto no solo sea resistente, sino también cómodo y funcional. Todo este proceso se apoyará en controles sistemáticos y registros que aseguren la trazabilidad, repetibilidad y confiabilidad de los resultados obtenidos.
Acondicionamiento del Producto
El acondicionamiento del producto tiene como finalidad proteger las sillas de acero durante su manipulación, almacenamiento y transporte, asegurando que lleguen al cliente en condiciones óptimas. Una vez finalizado el proceso de fabricación y control de calidad, las sillas se agrupan en pilas de hasta seis unidades, encajadas entre sí para optimizar el espacio y facilitar su traslado. Cada pila se embala cuidadosamente utilizando plástico film de embalaje industrial, envolviendo el conjunto de manera firme para proteger las superficies contra rayaduras, polvo y humedad. Para asegurar la estabilidad del bulto, se utiliza cinta de embalar resistente, aplicada de forma envolvente, garantizando que las sillas permanezcan unidas durante el transporte. Este sistema de acondicionamiento permite una manipulación eficiente, reduce riesgos de daños y cumple con requisitos básicos de seguridad logística.
Definición del Proceso de Producción
Diagrama de Flujo de Fabricación

Cursograma Analítico
A continuación, se presenta el cursograma analítico del proceso de fabricación de la silla de acero, el cual detalla paso a paso cada actividad, clasificándose según su naturaleza y permitiendo analizar la eficiencia del método actual.

Descripción de cada etapa del proceso productivo
El proceso productivo para la fabricación de la silla se inicia con la recepción de la materia prima y sigue una secuencia de etapas automatizadas y semiautomatizadas que permiten transformar el material en un producto terminado. A continuación, se detallan cada una de las etapas que componen este proceso.
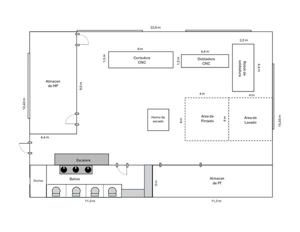
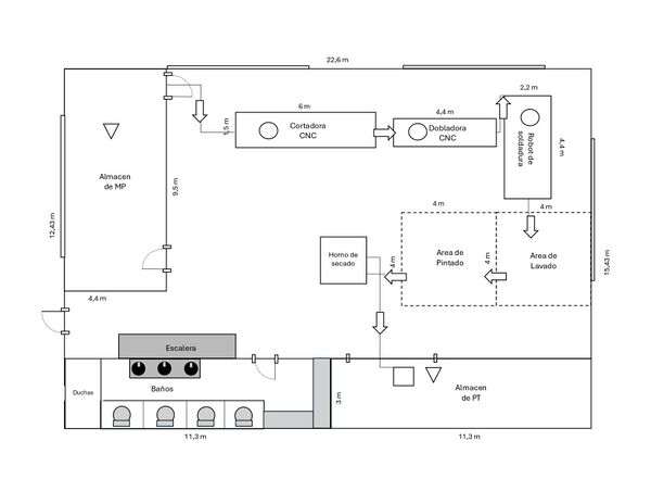
- Recepción de materia prima (MP): Se reciben los caños de acero 1045 laminado en caliente, que son la base estructural de la silla. Además, se recepcionan las chapas tercerizadas correspondientes al asiento y al respaldo, y las chapas de los apoyabrazos. El material se inspecciona y se transporta al almacén de materia prima.
- Almacenamiento de MP: Los materiales se almacenan en un sector designado del depósito, organizado según tipo y uso previsto, hasta el momento de su incorporación al proceso productivo.
- Corte de caños (proceso automático): Se utiliza una máquina de corte por láser para seccionar los caños según los planos de diseño cargados en el sistema. El equipo recibe los caños, los posiciona y realiza cortes precisos para conformar las patas, los apoyabrazos, y la estructura del asiento y el respaldo de la silla.
- Plegado (proceso automático): Con una plegadora CNC, se dobla cada pieza según el ángulo especificado. El operario coloca los caños en la máquina, que ajusta automáticamente la fuerza y ejecuta el plegado para formar contornos curvos, especialmente del respaldo y uniones estructurales.
- Soldadura (procesos automatizado): Los caños ya conformados y embutidos se ensamblan junto con las chapas provenientes del almacén de materia prima, para dar forma a la estructura de la silla. La soldadura es realizada por un robot que garantiza precisión en las uniones mediante tecnología láser.
- Lavado de la estructura: La silla se somete a un proceso de limpieza de forma manual donde el operario utiliza una hidrolavadora para eliminar impurezas, polvo o residuos de grasa, asegurando así la correcta adherencia de la pintura.
- Pintura electrostática: Se aplica pintura en polvo mediante una pistola electrostática que recubre uniformemente toda la estructura metálica.
- Horneado: La silla pintada se introduce en un horno industrial donde la pintura se cura a temperaturas entre 160 y 200 °C durante aproximadamente 15-20 minutos, logrando un acabado duradero.
- Control de Calidad y Almacenamiento de producto terminado (PT): Finalmente, las sillas terminadas se transportan al almacén de productos terminados, donde se realizan los controles de calidad mencionados anteriormente, y se guardan para ser entregadas a la empresa encargada del embalaje y distribución.
Determinación de las Máquinas e Instalaciones
Especificaciones Técnicas de las Máquinas
Máquina por corte láser[3] Esta máquina se utiliza para el corte de caños de acero 1045 laminado en caliente para conformar patas, apoyabrazos, estructura del asiento y respaldo. Utiliza un láser de fibra óptica de alta potencia para realizar cortes de precisión en tubos de acero.
El proceso es completamente automatizado: el operario carga las piezas, selecciona el programa correspondiente, y la máquina se encarga de posicionar, sujetar y cortar automáticamente según el diseño preestablecido.
Máquina PL-6016-T2
- Área de trabajo tubo: hasta 6.500 mm de largo y diámetro de 10 a 160 mm
- Potencia láser: 3 kw
- Tolerancia de posicionamiento X-Y: 0,05 mm
- Tolerancia de reposicionamiento X-Y: 0,03 mm
- Velocidad máxima de posicionamiento simultáneo X-Y: 60 m/min
- Dimensiones: largo 8700 mm y ancho 2200 mm
- Diámetro de chuck: 160 mm
- Cantidad de mordazas: 2
- Capacidad: 22 sillas /hora
Dobladora de tubos CNC[4]
En esta etapa se realiza la curvatura de los tubos que conforman el respaldo, los apoyabrazos y las uniones inferiores de la silla. Para ello se utiliza una dobladora CNC con carro de alimentación automático, que permite realizar curvas precisas y repetitivas sin intervención manual constante.
El proceso comienza con la carga del tubo y el ingreso del diseño desde el panel de control. La máquina avanza, gira y dobla automáticamente el material según el programa. Una vez finalizado, el operario retira la pieza curvada, lista para continuar con el proceso de fabricación.
Máquina DC5021
- Método de flexión: Servo o hidráulico
- Capacidad de flexión (acero al carbono): Φ50 × 2,5 mm (diámetro x espesor)
- Máximo radio de curvatura: 250 mm
- Ángulo máximo de doblado: 185°
- Precisión: Ángulo: ±0,1° / Avance: ±0,1 mm
- Distancia máx. de avance: 2150 mm
- Pantalla de control: Touch screen con almacenamiento de 500 programas
- Capacidad: 30 sillas/hora
Robot de soldadura[5]
Esta máquina realiza el ensamblaje de las partes estructurales de la silla, uniendo los tubos cortados y doblados con las chapas mediante un proceso de soldadura automatizada por láser. Para ello se utiliza una celda de soldadura robótica modelo PC-X1080, que permite lograr uniones de alta precisión, resistentes y estéticamente limpias.
El operario se encarga de cargar la estructura. Una vez fijados, el robot ejecuta la soldadura láser en los puntos definidos, siguiendo un programa previamente cargado. Este sistema garantiza velocidad, repetitividad y calidad constante en cada unidad producida.
Soldadura robótica modelo PC-X1080
- Ejes y posicionamiento: 2 ejes horizontales
- Área de trabajo (mm): 800 x 1000 mm
- Carga máxima: 500 kg
- Peso de la máquina: 4.200 kg
- Dimensiones: 2400 x 4300 x 2250 (L x A x H)
- Tipo de mesa: mesa fija
- Sistema de control: CNC con panel integrado y software dedicado para soldadura robótica
- Capacidad: 15 sillas/hora
Hidrolavadora eléctrica[6]
En esta etapa se realiza la limpieza a presión de componentes y superficies mediante el uso de la hidrolavadora HL-120. Este equipo permite remover suciedad, grasa o residuos incrustados de forma eficiente. El proceso comienza con la conexión a la red de agua y alimentación eléctrica, seguido del armado de la lanza y la selección del tipo de boquilla. Una vez encendida, el operario dirige el chorro de agua hacia la superficie deseada, logrando una limpieza profunda y pareja en pocos minutos.
Hidrolavadora HL-120
- Capacidad del motor: 1200 W
- Presión de trabajo: 7 Mpa (70 bar) (1010 Psi)
- Presión máx. permitida: 10.5 Mpa (105 bar)
- Caudal máx. de trabajo: 5.5 l/min
- Tasa máxima de flujo: 6.8 l/min
- Presión máxima del suministro de agua: 0,4 Mpa (4 bar)
- Temperatura máxima del agua: 5º a 50º
- Voltaje: 220 V ~ 50 Hz
- Peso: 5,2 kg.
- Capacidad: 13 sillas/hora
Pistola Electrostática Industrial para pinturas en polvo Epoxi[7]
El proceso se realiza utilizando una pistola manual SFlow Airless (incluye una boquilla y un porta boquilla), que permite una aplicación uniforme y eficiente de la pintura sobre toda la superficie metálica. La carga electrostática hace que el polvo se adhiera firmemente a la estructura, asegurando una cobertura homogénea incluso en zonas difíciles.
Pistola manual SFlow Airless
- Presión máxima del producto: 275 a 470 bar (4000–6820 psi)
- Temperatura máxima del producto: 260 °C
- Eficiencia de transferencia: 81%
- Rango de viscosidad del producto: 20 a 25.000 cps
- Sistema de seguridad: gatillo con bloqueo
- Boquilla/orificio: 2,5 mm
- Nivel de ruido: 88.6 dB (A)
- Peso de la pistola: 597 g
- Materiales del equipo: acero inoxidable, aluminio, rulon
- Capacidad: 12 sillas/hora
Horno de Curado (fijado de pintura en polvo epoxi)[8]
Con el horno de curado se hornea la estructura para fijar la pintura epoxi a la superficie metálica. El proceso consiste en el ingreso manual de las piezas al horno, donde se someten a una temperatura controlada de 160 °C a 200 °C durante 15 a 20 minutos.
Horno de curado
- Frente: 2200 mm
- Fondo útil: 2200 mm
- Fondo total: 2400 mm
- Altura Útil: 2200 mm
- Altura Total: 2500 mm
- Puertas: 2
- Peso: 1 tonelada
- Dimensiones: 2 x 2 x 2 m
- Capacidad: 16 sillas/hora
Consumo de Energía, Agua y Otros Servicios
Consumo de electricidad
A continuación, se detalla el consumo total estimado de energía eléctrica por año, teniendo en cuenta todas las máquinas que forman parte del proceso de fabricación para una jornada de 8 horas por día, 6 días a la semana. El cálculo considera la cantidad de equipos, su consumo promedio por hora y la cantidad de horas operativas anuales.
| Máquina | Consumo eléctrico por hora (kWh) | Horas/año estimadas | Consumo anual estimado (kWh/año) |
| Cortadora | 12 | 2.408 | 28.896 |
| Dobladora | 6 | 2.408 | 14.448 |
| Lavado | 3 | 2.408 | 14.448 |
| Soldadora | 10 | 2.408 | 24.080 |
| Pintura | 1,2 | 2.408 | 5.779,2 |
| Consumo anual total | 32,2 | - | 87.651,2 |
Consumo de agua
Según la Organización Mundial de la Salud (OMS), una persona necesita aproximadamente 50 litros de agua por día para cubrir sus necesidades básicas. Tomaremos un rango próximo a este valor como referencia para calcular el consumo anual.[9]
- Consumo diario estimado por empleado: 50 litros
- Días laborables por año: 301
- Consumo anual por empleado: 15.050 litros
- Consumo total de agua anual: 406.350 litros
En lo que respecta a nuestras máquinas, la hidrolavadora es la única que requiere consumo de agua. El consumo de agua de la hidrolavadora HL-120 se estima en aproximadamente 1.156 m³ anuales, considerando un caudal constante de 8 litros por minuto y una operación continua de 2.408 horas al año.
Consumo de gas
El horno de secado consume un valor medio de 1,8 kg/h de GLP (Gas Licuado de Petróleo) por lo que presenta un consumo estimado de 4.334 kg anuales. Para garantizar un uso eficiente del gas, el equipo cuenta con aislamiento térmico que minimiza pérdidas de calor, reguladores de presión para una combustión controlada y válvulas de corte de seguridad.
Otros consumos
También contaremos con servicios de red telefónica y conexión Wi-Fi, fundamentales tanto para el funcionamiento del área administrativa como para facilitar la comunicación interna.
Mantenimiento y Medios de Control
El correcto funcionamiento de las máquinas involucradas en el proceso productivo depende de un plan de mantenimiento preventivo riguroso, acompañado por sistemas de control de calidad y medidas de seguridad orientadas a prevenir fallas técnicas. El mantenimiento programado para las máquinas automáticas será cada 6 meses, y para las máquinas manuales o semiautomáticas será semanalmente.
Cortadora: El mantenimiento preventivo de la cortadora incluye la limpieza, revisión y lubricación de guías y rieles. Los controles de calidad se realizan mediante evaluación visual del corte para detectar rebabas o quemaduras.
Dobladora: El mantenimiento incluye la limpieza de rodillos y cabezal, lubricación de componentes móviles y chequeo del sistema de refrigeración automático. Como medios de control, posee un sistema CNC con detección de errores.
Soldadora: El mantenimiento preventivo comprende la limpieza de la antorcha, cambio de boquillas, control del hilo de alimentación, lubricación de guías, y verificación de gases y parámetros CNC. Los medios de control incluyen sensores de posición y temperatura, trayectorias programadas con alta precisión (±0,1 mm), corrección automática de desvíos, y panel de control.
Lavado: El mantenimiento preventivo incluye la limpieza periódica del filtro de agua, revisión del estado de la manguera y conexiones, control del nivel de aceite en la bomba y purgado del sistema para evitar acumulación de aire o residuos. Se realiza también una inspección de la boquilla y el gatillo, asegurando que no presenten obstrucciones ni desgaste.
Pintura: El mantenimiento del equipo de pintura incluye la limpieza diaria de boquillas y filtros, revisión de presión de bombeo, inspección de mangueras, y limpieza profunda al cambiar de color o producto.
Horno: El mantenimiento del horno incluye un control diario del funcionamiento de los ventiladores, extractores y termostato, y semanalmente lubricación de partes móviles.
Descripción de los Sistemas de Seguridad
Elementos de protección requeridos por el proceso: Para los procesos industriales desarrollados con nuestras máquinas, es fundamental el uso de elementos de protección personal (EPP). A cada operario se le entregará:
- Calzado con puntera de acero
- Guantes específicos para cada tarea
- Protectores visuales (gafas o máscara según exposición)
- Ropa de trabajo adecuada (ignífuga o de algodón grueso)
- Protectores auditivos (tapones o tipo copa)
Seguridad contra incendios: Dado que se trabaja con materiales inflamables, electricidad y procesos térmicos, se identifican riesgos de incendio tipo A, B y C. Para mitigarlos, la planta estará equipada con:
- Extintores de polvo químico seco y CO₂ ubicados cerca de cada estación de trabajo.
- Sistemas de detección de humo y alarmas sonoras distribuidos en el área de producción.
- Iluminación de emergencia, cartelería reglamentaria y plan de evacuación.
- Capacitación al personal sobre cómo actuar ante emergencias y simulacros de evacuación llevados a cabo por un responsable de seguridad e higiene.
Seguridad en máquinas: Cada máquina cuenta con su propia parada de emergencia, advertencias visibles y zonas delimitadas de seguridad para evitar la exposición directa del operario a elementos móviles, térmicos o eléctricos.
Cálculos
| Balance Anual de Material (Kg) | ||||
|---|---|---|---|---|
| Secciones Operativas | Alimentación | Desperdicios | Producción Seccional | |
| Recuperables | No Recuperables | |||
| Corte | 191.542,3 | 0,0 | 15.352,0 | 176.190,3 |
| Plegado | 176.190,3 | 0,0 | 0,0 | 176.190,3 |
| Soldadura | 176.190,3 | 0,0 | 0,0 | 176.190,3 |
| Lavado | 176.190,3 | 0,0 | 0,0 | 176.190,3 |
| Pintura | 176.190,3 | 0,0 | 0,0 | 176.190,3 |
| Horneado | 176.190,3 | 0,0 | 0,0 | 176.190,3 |
| TOTALES | 191.542,3 | 0,0 | 15.352,0 | 176.190,3 |
| Volumen total ingresado, en la primera sección operativa (kg) | 191.542,3 | ||
| Consumo Real de Materia Prima (kg) | 191.542,3 | ||
| Porcentaje de Desperdicio Operativo, en función de la producción | 8,71% | ||
| Porcentaje de Desperdicio Real, en función de la producción | 8,71% | ||
| Porcentaje de Desperdicio Operativo, en función de la alimentación | 8,01% | ||
| Porcentaje de Desperdicio Real, en función de la alimentación | 8,01% | ||
| Días Activos al Año | 301 | |
| Horas Activas al Año | 2408 | |
| Horas al Año trabajadas por cada Operario | 2408 | |
| Meses Operativos | 12 | |
| Capacidad Teórica y Real de las Máquinas | |||||
|---|---|---|---|---|---|
| Secciones Operativas | Capacidad Teórica por Máquina | Horas Activas al Año | Capacidad Teórica Anual | Rendimiento Operativo | Capacidad Real Anual |
| (sillas / hora) | (hora) | (sillas) | (%) | (sillas) | |
| Corte | 22 | 2.408 | 52.976 | 85,3 | 45.189 |
| Plegado | 30 | 2.408 | 72.240 | 90 | 65.016 |
| Soldadura | 15 | 2.408 | 36.120 | 86,7 | 31.316 |
| Lavado | 13 | 2.408 | 31.304 | 80 | 25.043 |
| Pintado | 12 | 2.408 | 28.896 | 81 | 23.406 |
| Horneado | 16 | 2.408 | 38.528 | 83,3 | 32.094 |
| Cantidad de Máquinas y Aprovechamiento Seccional | |||||
|---|---|---|---|---|---|
| Secciones Operativas | Programa Anual de Producción | Capacidad Real Anual x Máquina | Cantidad de Máquinas Necesarias | Capacidad Real Anual x Sección | Aprovechamiento Seccional |
| (sillas) | (sillas) | (máquinas) | (sillas) | (%) | |
| Corte | 29.862,8 | 45.188,5 | 1 | 45.188,5 | 66,08 |
| Plegado | 29.862,8 | 65.016,0 | 1 | 65.016,0 | 45,93 |
| Soldadura | 29.862,8 | 31.316,0 | 1 | 31.316,0 | 95,36 |
| Lavado | 29.862,8 | 25.043,2 | 2 | 50.086,4 | 59,62 |
| Pintado | 29.862,8 | 23.405,8 | 2 | 46.811,5 | 63,79 |
| Horneado | 29.862,8 | 32.093,8 | 1 | 32.093,8 | 93,05 |
| Cuello de Botella | Soldadura |
| Capacidad Real Anual | 184.366,7 |
| Balance Anual de Material (Kg) | ||||
|---|---|---|---|---|
| Secciones Operativas | Alimentación | Desperdicios | Producción Seccional | |
| Recuperables | No Recuperables | |||
| Corte | 191.542,3 | 0,0 | 15.352,0 | 184.366,7 |
| Plegado | 184.366,7 | 0,0 | 0,0 | 184.366,7 |
| Soldadura | 184.366,7 | 0,0 | 0,0 | 184.366,7 |
| Lavado | 184.366,7 | 0,0 | 0,0 | 184.366,7 |
| Pintura | 184.366,7 | 0,0 | 0,0 | 184.366,7 |
| Horneado | 184.366,7 | 0,0 | 0,0 | 184.366,7 |
| TOTALES | 191.542,3 | 0,0 | 15.352,0 | 184.366,7 |
Determinación de la Evolución de las Mercaderías
Tiempos de Entrega y Envíos de la Mercadería
Dado el carácter B2B del negocio y la alta capacidad productiva alcanzada, se proyecta un esquema de entrega ágil y eficiente. El plazo estimado para la entrega de las mercaderías será de una semana a partir de la confirmación del pedido.
El envío será tercerizado mediante operadores logísticos especializados, con el objetivo de asegurar una distribución confiable, profesional y con cobertura nacional. Esta decisión permite evitar los costos y limitaciones de una flota propia, al mismo tiempo que se gana flexibilidad para atender demandas con distintos volúmenes y ubicaciones geográficas.
Tamaños y Frecuencias de Compra
Dado que el consumo de Materia Prima es lineal a lo largo de todo el año, la compra de Materia Prima será de manera trimestral, con un total de 4 compras por año. Los tiempos de entrega de los materiales no presentarán demoras significativas dado que el proveedor se encuentra en una locación cercana a nuestra fábrica.
Cálculos
| Volúmen de Producción Mensual en Estado de Régimen | 14.683 | |
| Volúmen de Producción durante la Puesta en Marcha | |||||
|---|---|---|---|---|---|
| Mes | Ritmo de Producción al Inicio (%) | Ritmo de Producción al Final (%) | Ritmo Promedio (%) | Producción Mensual Promedio (kg) | Producción Propuesta (kg) |
| 1 | 0 | 90 | 45 | 14.682,5 | 6.607,1 |
| 2 | 90 | 100 | 95 | 14.682,5 | 13.948,4 |
| TOTAL | 20.555,5 | ||||
| Volúmen de Producción resto del Año | 146.825 | |
| Volúmen de Producción del Año 1 | 167.381 | |
| Volúmen de Producción del Año 2 al 5 | 176.190 | |
| Volúmen de Producción Promedio Semanal en estado de Régimen | 4.097 | ||
| Stock Promedio de Elaborado | 2.049 | ||
| Ventas del Año 1 | 165.332 | |
| Ventas de los Años 2 a 5 | 176.190 | |
| Días Activos al Año | 301 | |
| Ciclo de elaboración (días de ritmo normal) | 5 | |
| Ciclos de elaboración anuales | 60 | |
| Desperdicio Puesta en Marcha (kg) | 3.582 | |
| Desperdicio Resto Año 1 (kg) | 12.793 | |
| Desperdicio Año 2 al 5 (kg) | 15.352 | |
| Consumo de MP en la Mercadería en Proceso (kg) | 3.182 | |
| Consumo Total de MP Año 1 (kg) | 186.938 | |
| Consumo Total de MP Año 2 al 5 (kg) | 191.542 | |
| Consumo mensual promedio (kg) | 15.962 | |
| Stock Promedio | |||
|---|---|---|---|
| Meses (a fin de mes) | Stock | Consumo | Compras |
| Enero | 15.962 | 15.962 | 47.886 |
| Febrero | 47.886 | 15.962 | 0 |
| Marzo | 31.924 | 15.962 | 0 |
| Abril | 15.962 | 15.962 | 47.886 |
| Mayo | 47.886 | 15.962 | 0 |
| Junio | 31.924 | 15.962 | 0 |
| Julio | 15.962 | 15.962 | 47.886 |
| Agosto | 47.886 | 15.962 | 0 |
| Septiembre | 31.924 | 15.962 | 0 |
| Octubre | 15.962 | 15.962 | 47.886 |
| Noviembre | 47.886 | 15.962 | 0 |
| Diciembre | 31.924 | 15.962 | 0 |
| Resumen Programa General de Evolución | ||||
|---|---|---|---|---|
| Unidad | Año 0 | Año 1 | Año 2 al 5 | |
| Ventas | kg | 165.332 | 176.190 | |
| Stock Promedio de elaborados | kg | 2.049 | 2.049 | |
| Producción | kg | 167.381 | 176.190 | |
| Desperdicio No Recuperable | kg | 16.375 | 15.352 | |
| Mercadería en proceso | kg | 3.182 | 3.182 | |
| Consumo de Materia Prima | kg | 186.938 | 191.542 | |
| Stock de Materia Prima | kg | 24.500 | 31.924 | 31.924 |
| Compras de Materia Prima | kg | 24.500 | 194.362 | 191.542 |
Determinación del Personal
Organigrama de la Empresa

Descripción de los Puestos de Trabajo
Dirección General
Gerencia General: Tiene a su cargo la conducción estratégica de la empresa, definiendo los objetivos de largo plazo y liderando la coordinación entre todas las áreas. Es quien toma las decisiones fundamentales para garantizar el crecimiento y sostenibilidad del negocio.
Perfil requerido: Deberá contar con una formación universitaria en Ingeniería Industrial, Administración, Contabilidad o afines, con experiencia en industrias similares. Se valoran habilidades en liderazgo, comunicación, toma de decisiones y conocimiento del mercado.
Área Administrativa y Comercial
Gerente Administrativo-Comercial: Organiza y supervisa las tareas administrativas y comerciales. Tiene a su cargo las áreas de compras, contabilidad y finanzas, recursos humanos, marketing y vendedores. Se encarga de planificar acciones para potenciar las ventas, analizar el mercado y buscar constantemente nuevas oportunidades para posicionar las sillas en el rubro mobiliario.
Perfil requerido: Título en Ingeniería Industrial, Administración, Marketing o carreras similares. Experiencia en gestión comercial, preferentemente en productos de diseño o mobiliario. Debe demostrar liderazgo y visión estratégica.
Responsable de ventas: Sus funciones principales consisten en la captación y seguimiento de clientes corporativos o distribuidores, la elaboración de presupuestos personalizados, la gestión de pedidos y el cierre de ventas. Se encargan de asesorar, vender y fomentar relaciones comerciales estables, por lo que deben contar con buenas habilidades de comunicación, conocimientos técnicos del producto y capacidad para negociar condiciones comerciales.
Perfil requerido: Formación en Administración, Economía o afines, o experiencia equivalente en el rubro mobiliario. Se requieren habilidades comunicativas, conocimiento del producto y orientación al cliente.
Responsable de compras: Su principal responsabilidad es identificar, seleccionar y mantener vínculos con proveedores confiables, negociar condiciones comerciales como precios, plazos de entrega y formas de pago; así como emitir las órdenes de compra correspondientes. Además, se encarga de controlar el cumplimiento de los pedidos, resolver posibles inconvenientes en la cadena de suministro y coordinar con el área de Producción para garantizar la disponibilidad de insumos en tiempo y forma.
Perfil requerido: Este puesto requiere habilidades de negociación, planificación y análisis de costos.
Responsable Contable y Financiero: Se encarga de llevar adelante las tareas administrativas y contables del día a día. Esto incluye la facturación, el control de cuentas por cobrar y pagar, las conciliaciones bancarias, el seguimiento del flujo de caja, la elaboración de reportes económicos y la gestión de presupuestos.
Perfil requerido: Contador Público con experiencia en industrias manufactureras.
Recursos Humanos: Entre sus funciones se incluyen el reclutamiento y selección de personal, la administración de legajos, el seguimiento del ausentismo, la implementación de acciones vinculadas al clima laboral y la capacitación continua de los empleados. También se ocupa de mantener el cumplimiento de la normativa laboral vigente y fomentar buenas prácticas organizacionales.
Perfil requerido: Licenciatura en Recursos Humanos, Psicología, Relaciones del trabajo o afines. Se busca una persona empática, organizada, con habilidades para la mediación y el trabajo interdisciplinario.
Marketing: Entre sus responsabilidades se destacan la planificación y ejecución de campañas digitales, el diseño de piezas gráficas, la administración de redes sociales, la generación de contenido para el sitio web y la participación en eventos o ferias del rubro. También es encargado de analizar la competencia y colabora con el área comercial para potenciar la visibilidad de la empresa.
Perfil requerido: Carrera en Marketing, Comunicación o Publicidad. Se valora la creatividad, la experiencia en gestión de equipos y la capacidad de análisis del entorno.
Área de Producción
Gerente de Producción: es el encargado de liderar y coordinar integralmente el proceso productivo, abarcando las áreas de fabricación, control de calidad, mantenimiento y logística. Su misión principal es asegurar el cumplimiento de los objetivos de producción mediante una eficiente planificación, programación y control de las operaciones, optimizando al máximo los recursos disponibles.
Perfil requerido: profesional en Ingeniería Industrial, con experiencia en roles similares. Se valoran especialmente la capacidad para liderar equipos, la toma de decisiones y las habilidades de planificación estratégica.
Jefe de Planta: responsable de coordinar todas las actividades vinculadas a la fabricación. Su rol consiste en dirigir, supervisar y brindar apoyo al equipo involucrado en el proceso productivo, asegurando el cumplimiento de la planificación definida por el Gerente de Producción.
Perfil requerido: Profesional en Ingeniería Industrial, con conocimientos en procesos de fabricación metálica. Se valoran especialmente las habilidades de liderazgo, comunicación y capacidad para gestionar equipos de trabajo y resolver conflictos operativos.
Operarios: Sus tareas principales incluyen la preparación y puesta en marcha de las máquinas, la carga de materiales, el control del funcionamiento durante el proceso productivo y la realización de ajustes menores cuando sea necesario. Además, los operarios son responsables de controlar la calidad básica del producto en su etapa intermedia, detectar fallas evidentes y reportarlas a sus supervisores.
Perfil requerido: Se requiere contar con estudios secundarios completos, buena condición física, responsabilidad, capacidad de trabajo en equipo y compromiso con el cumplimiento de las normas de seguridad y calidad. Se valoran conocimientos técnicos básicos relacionados con maquinaria industrial.
Responsable de logística: Responsable de organizar la distribución de los productos terminados, gestionar el inventario, coordinar el embalaje, etiquetado y despacho de los pedidos, y llevar un registro detallado del flujo de mercadería. También debe asegurar que cada envío cumpla con los estándares de calidad y que los pedidos lleguen en tiempo y forma, minimizando errores y retrasos. Su rol es clave para mantener la eficiencia operativa y la satisfacción del cliente.
Perfil requerido: Ingeniería Industrial, Administración o similares. Se valoran habilidades de planificación, liderazgo y toma de decisiones.
Responsable de mantenimiento: encargado de asegurar el correcto funcionamiento de todos los equipos e instalaciones de la planta. Su tarea principal es prevenir y resolver fallas técnicas que puedan afectar el proceso productivo. Sus funciones incluyen desde inspecciones periódicas hasta reparaciones, ajustes y mejoras en la maquinaria.
Perfil requerido: Formación en Ingeniería Mecánica o tecnicaturas afines. Se valoran especialmente la atención al detalle y las habilidades para diagnosticar y solucionar problemas técnicos de forma eficiente.
Responsable de control de calidad: tiene como objetivo asegurar que los productos fabricados cumplan con los estándares de calidad exigidos.
Perfil requerido: Profesional en Ingeniería Industrial o carreras afines. Se valoran habilidades de análisis, comunicación clara y compromiso ético.
Responsable de seguridad e higiene: Se encarga de planificar, implementar y supervisar las políticas de prevención de riesgos laborales y salud ocupacional para garantizar un entorno seguro, reduciendo accidentes y enfermedades en la empresa. Sus funciones incluyen identificar peligros, evaluar riesgos, elaborar informes técnicos, coordinar capacitaciones, supervisar el uso de elementos de protección personal, verificar señalización y realizar inspecciones periódicas. Además, actúa como intermediario con organismos externos, asegurando el cumplimiento legal de instalaciones y prácticas, y lidera investigaciones y medidas correctivas ante incidentes.
Perfil requerido: Ingeniería Industrial o especialista en Seguridad e Higiene. Se requiere una persona responsable, con capacidad para actuar ante emergencias y generar conciencia preventiva.
Calificación y Formación necesaria de los Operadores
El equipo está conformado por 12 operarios distribuidos estratégicamente en función de los procesos productivos y de acuerdo a un esquema de trabajo de un turno. Cada operario está capacitado para manejar todas las máquinas, sin embargo cada uno tiene un puesto determinado en una máquina o etapa del proceso.
- 6 operarios se encargan de las máquinas automáticas de corte, soldadura y plegado. Estos trabajadores tienen como responsabilidad principal el monitoreo, alimentación y supervisión de las máquinas durante el ciclo de producción, así como también el traslado de materiales de una máquina a la otra. Se requiere título secundario completo y son valorados los conocimientos técnicos en operación de maquinaria automatizada. La tarea demanda atención constante, capacidad de reacción ante fallos menores y criterio para la detención segura del proceso si fuera necesario.
- 6 operarios están asignados a los procesos manuales: lavado, pintura y horno. Estas tareas requieren precisión, prolijidad y cuidado en el tratamiento de superficies, así como el manejo seguro de materiales y productos químicos. Se exige título secundario completo y buen estado físico, ya que las tareas implican movimientos repetitivos, carga moderada y exposición a condiciones de calor o humedad. La responsabilidad, el orden y el cumplimiento de normas de seguridad e higiene son fundamentales para estas funciones.
Se brindará capacitación específica para cada máquina de trabajo, tanto en el manejo seguro y eficiente de maquinaria automática, como en procesos manuales. Estas instancias formativas incluirán también contenidos relacionados con el mantenimiento preventivo, la lectura de planos básicos, la ergonomía y la aplicación de normas de seguridad e higiene industrial. El objetivo es asegurar una operación segura, eficaz y alineada con los estándares de calidad del producto final.
Listado de Equipos Auxiliares, Muebles y Útiles
| ÁREA | ÍTEM | CANTIDAD |
| PRODUCCIÓN | Mesa de trabajo | 4 |
| Escritorios | 1 | |
| EPP | 12 | |
| Pallets | 10 | |
| Zorras | 3 | |
| Dispenser de Agua | 3 | |
| Set de Herramientas | 4 | |
| Computadoras | 4 | |
| Sillas de escritorio | 1 | |
| Detector de humo | 3 | |
| Cesto de basura | 4 | |
| Mueble/Archivero | 2 | |
| Luminarias | 12 | |
| Router | 1 | |
| TÉCNICA | Luminarias | 6 |
| Computadoras | 3 | |
| Escritorios | 3 | |
| Sillas de escritorio | 3 | |
| Cesto de basura | 3 | |
| Dispenser de Agua | 1 | |
| Impresoras | 1 | |
| Resma de hojas A4 | 4 | |
| Cafetera | 1 | |
| Aire acondicionado | 1 | |
| Archivero | 1 | |
| Teléfonos fijos | 2 | |
| Aire acondicionado | 2 | |
| Router | 1 | |
| ADMINISTRACIÓN | Luminarias | 4 |
| Computadoras | 5 | |
| Escritorios | 5 | |
| Sillas de escritorio | 5 | |
| Cesto de basura | 3 | |
| Dispenser de Agua | 1 | |
| Impresoras | 2 | |
| Resma de hojas A4 | 6 | |
| Cafetera | 2 | |
| Aire acondicionado | 2 | |
| Archivero | 3 | |
| Racks | 1 | |
| Teléfonos fijos | 4 | |
| Switch | 1 | |
| Router | 1 | |
| COMEDOR | Luminarias | 6 |
| Microondas | 2 | |
| Mesa | 3 | |
| Dispenser de Agua | 1 | |
| Sillas | 18 | |
| Televisión | 1 | |
| Heladera | 1 | |
| Lava manos | 2 | |
| BAÑO/VESTUARIOS | Inodoros | 8 |
| Lava manos | 6 | |
| Duchas | 3 | |
| Lockers | 12 | |
| Jabón | 8 | |
| Papel Higiénico | 20 | |
| Luminarias | 4 |
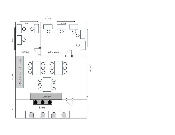
Anteproyecto de Planta
Plano de la Planta
Planta baja:

Primer piso:

Plano Recorrido de los Materiales


Cronograma de Ejecución

Excel
Documento de Excel donde se desarrollaron los cálculos de los ejercicios 1 al 11; matriz de localización; listado de equipos auxiliares, muebles y útiles; y cronograma de ejecución.[10]
Bibliografía
- ↑ http://www.ventachap.com/#!/producto/5/
- ↑ https://www.ms.gba.gov.ar/sitios/pepst/wp-content/uploads/sites/222/2017/02/Decreto_351-79.pdf
- ↑ https://patagoniacnc.com/maquinas-de-corte-laser/serie-plat/
- ↑ https://patagoniacnc.com/dobladora-cnc/
- ↑ https://patagoniacnc.com/soldaduras-roboticas/celdas-roboticas/
- ↑ https://lusqtoff.com.ar/ver-producto/HL-120
- ↑ https://www.sdep.com.ar/sames-kremlin/pistolas/pistola-manual-airless-sflow/
- ↑ https://corporacioncomatpe.com/producto/horno-de-curado-con-encendido-manual/?srsltid=AfmBOoomTR6sXT0A49-gpg8w1ZoWmnhMZq1tV_vyIMx4L1zLDhX_cGnf
- ↑ https://buenosaires.gob.ar/modernizacion/sustentabilidad/consejos/agua#:~:text=La%20media%20argentina%20de%20consumo,lo%20necesario%20seg%C3%BAn%20esta%20entidad
- ↑ https://docs.google.com/spreadsheets/d/1GL4aJOKhMfwUK4Omu2wvHuRRosOXtjEDvD_W1ya-KCQ/edit?gid=1309922437#gid=1309922437