Archivo:DIR .jpg

De Evaluación de Proyectos
Revisión del 20:39 9 jul 2021 de GarciaVildozaJuan manuel (discusión | contribs.)
(difs.) ← Revisión anterior | Revisión actual (difs.) | Revisión siguiente → (difs.)
Ir a la navegación Ir a la búsqueda

Archivo original(2482 × 1755 píxeles; tamaño de archivo: 471 kB; tipo MIME: image/jpeg)

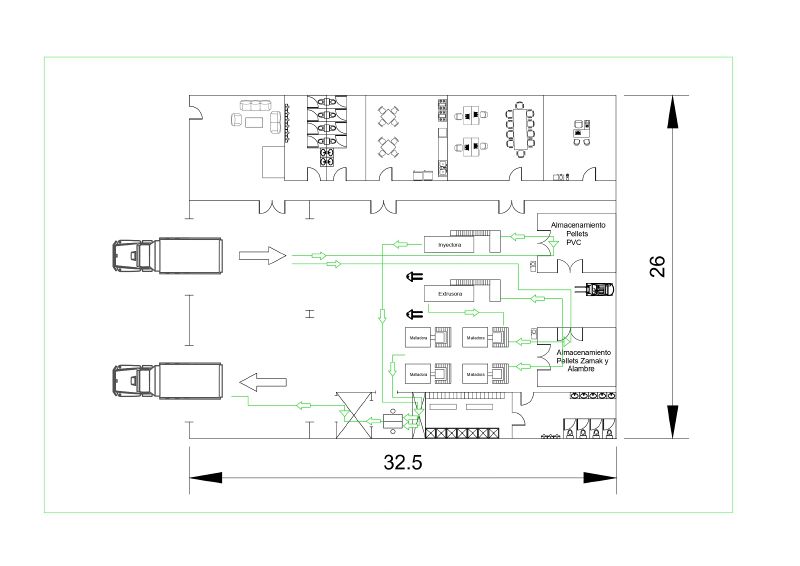
Diagrama Interno de Recorrido para materiales, Todoflex

Historial del archivo

Haz clic sobre una fecha y hora para ver el archivo tal como apareció en ese momento.

Fecha y horaMiniaturaDimensionesUsuarioComentario
actual20:39 9 jul 2021Miniatura de la versión del 20:39 9 jul 20212482 × 1755 (471 kB)GarciaVildozaJuan manuel (discusión | contribs.)

No hay páginas que enlacen a este archivo.