Diferencia entre revisiones de «2018/Grupo13/DimensionamientoTecnico»
| Línea 593: | Línea 593: | ||
[[Archivo:Cuadro1310.png|centre|thumb|746x746px]] | [[Archivo:Cuadro1310.png|centre|thumb|746x746px]] | ||
=== Cronograma de ejecución === | === Cronograma de ejecución === | ||
[[Archivo: | [[Archivo:Cronograma Corregido Heladito.png|centre|thumb|878x878px]] | ||
Revisión del 15:25 13 sep 2018
Determinación de la localización
Matriz de localización
Basándonos en la matriz de localización elegimos situarnos en CABA, y esto se debe mayoritariamente a la cercanía a nuestros clientes.
Definición técnica del producto
Planos del envase
El helado que produciremos lo comercializaremos en baldes de 10 litros. El material del que están hechos los recipientes es polipropileno de alta densidad y vienen con tapa. Tiene una altura de 284 mm, un diámetro inferior de 210 mm y un diámetro superior de 233 mm. Su capacidad es de aproximadamente 6,5 kg de helado.
Listado de Materiales (BOM)
Para la preparación de helado, los ingredientes necesarios son:
- Agua
- Leche en polvo entera y descremada
- Estabilizantes
- Azúcar y/o Dextrosa
- Emulsionantes
- Saborizantes, pastas y esencias: Cobertura, cacao, base frutal (según el gusto)
Para el envasado y comercialización del helado es necesario:
- Baldes plásticos con tapa de una capacidad de 6,5 kg.
Diagrama Arbóreo
Especificaciones Técnicas
Dependiendo del gusto del helado la composición del mismo será diferente.
- Helados de Crema: Tienen entre 160 y 250 calorías cada 100 gramos, un 13% de hidratos de carbono procedentes del azúcar. Contienen sólo grasa láctea y proteínas (5%) que provienen de la leche y sus derivados. Las vitaminas y los minerales que aporta depende de la cantidad de leche que tenga.
- Helados de agua: No contienen colesterol ni grasa por lo cual aportan menos calorías que los de crema y apenas aportan minerales.
Normas Aplicables
Para el envase de plástico la norma que deben cumplir nuestros proveedores es la ISO 9001 (norma sobre la gestión de calidad) y debe estar certificado y aprobado por SENASA (Servicio Nacional de Sanidad y Calidad Agroalimentaria) para contener y trasladar alimentos.
En cuanto al helado, debemos tener en cuenta las correspondientes al Código Alimentario Argentino, Análisis de riesgo y puntos críticos de control (HACCP), obtención de códigos RNE (Registro Nacional de establecimientos) y RNPA (Registro Nacional de Productos Alimentarios). Es necesario tener también la ISO 9000 y la 9001/2008 para certificar la calidad de la empresa, la 14000 que es de sistema de gestión ambiental y la ISO 22000 sobre seguridad alimentaria.
Plan de Ensayos
Lo más importante del helado es la calidad. Por lo cual el ensayo indispensable que debe tener el producto es el de control de calidad una vez que se tenga el producto terminado. Se le hace un análisis sensorial, microbiológico y físico-químico. El helado no se puede vender sin haber pasado por estos estudios. Por lo cual se prevee un plazo de seguridad de tres días posterior a la fabricación. Algunos de los parámetros que hay que controlar:
- Test rápido para medir parámetros de grasa (cloro en agua, concentración de azúcar, color y humedad).
- Un operario controla el tiempo y la temperatura durante la pasteurización y la congelación.
- Determinación de viscosidad y peso.
Métodos importantes para controlar la calidad son la observación sensorial, la visual, análisis microbiolóico, determinaciones físicas y análisis químico. Estos deben tener valores de fácil obtención, como tiempo y temperatura.
Definición del proceso de producción
Proceso productivo
1. Recepción y almacenamiento de materia prima.- Las materias primas se reciben en el almacén en estado seco, líquido, congelado
La materia prima que se recibe (para elaboración del helado de crema) es la siguiente:
- Leche pasteurizada
- Endulzantes (Por ejemplo azúcar o dextrosa)
- Crema de Leche
- Chocolate y cacao
- Dulce de leche
- Frutas frescas
- Frutas secas
- Cereales
- Suero
- Agua
2. Inspección: La leche pasteurizada, así como la crema son inspeccionadas, probadas y pesadas.
Estas materias primas se someten a pruebas para determinar si son adecuadas para su uso e incluyen: determinación de la densidad, punto de congelación, determinación de la acidez, precipitación con alcohol y ebullición.
3. Transporte de cada ingrediente a su respectivo proceso de mezcla.- La materias prima es transportada a contenedores para mezcla
4. Agitación de concentrados.- El concentrado de saborizantes se mantiene con movimiento para que no se llegue a asentar, esto se realiza en un contenedor de saborizante con agitador.
5. Transporte a mezcladora de mixtura.- El concentrado de saborizante es bombeado hacia la mezcladora de mixtura de helado.
6. Mezclado de la leche.- El mezclado se realiza con un tanque procesador redondo. En este tanque se realiza la mezcla de la leche que está compuesta de leche en polvo, suero, grasa y agua.
7. Transporte a mezcladora de mixtura.- La mezcla se transporta por medio de bombeo a la mezcladora de mixtura de helado.
8. Mezclado de mixtura.- Se realiza con una mezcladora de mixtura de helado en la cual se prepara la combinación exacta entes de entrar al proceso de congelamiento. Aquí se agrega al concentrado de saborizantes la leche con azúcar, a temperatura baja. La mezcla se realiza a 60° C.
9. Inspección.- La mezcla se deja enfriar hasta que llegue a temperatura ambiente.
10. Transporte a pasteurización.- El producto resultante del proceso anterior es bombeado hacia un autoclave.
11. Pasteurización.- La mezcla de helado llega al autoclave donde se realiza la pasteurización (eliminar el contenido microbiológico).
Las temperaturas adecuadas para la pasteurización son: de 71° C durante 30 minutos ó 80 ° C durante 25 minutos.
12. Transporte a homogenizado.- La mezcla, ya pasteurizada se transporta por medio de bombeo a un tanque homogenizador.
13. Homogenizado.- Después de la pasteurización se lleva a cabo el filtrado de la mezcla para quitarle grumos y materiales extraños que pudieran haber quedado en ella durante las operaciones previas.
El homogenizado se realiza mediante un tanque homogenizador y el objetivo de esta operación es prevenir la separación de los diversos ingredientes y uniformizar el producto, por lo que es posible la utilización de materias primas con distintas viscocidades. Con este proceso se reduce el efecto de "requesón" y se le da una apariencia cremosa al helado. Este proceso se lleva a cabo bajo temperaturas de 62° C o mayores.
14. Transporte a enfriado.- Terminado el proceso de homogenizado la mezcla se transporta por bombeo a un tanque enfriador.
15. Enfriado.- El enfriado se realiza mediante un tanque el cual mantiene una temperatura baja de la mezcla para que no exista posibilidad de que se generen microorganismos en el transcurso de lo que resta del proceso.
El enfriado se lleva a cabo a 2 ó 3° C y se conserva a temperatura por debajo de los 4° C pero siempre manteniéndose por encima de su punto de congelación.
16. Transporte a congelador.- La mezcla de helado se transporta por medio de una banda sin fin a un congelador.
17.Congelado previo.- Con esta actividad se busca congelar parcialmente la mezcla e incorporar aire a ella buscando el incremento de volumen debido a las burbujas de aire atrapadas. Esto se considera como un punto de referencia en la maduración del helado y se puede presentar tanto en tambos o tanques, como en líneas continuas (bandas sin fin).
18. Inspección.- Se realiza la inspección del producto terminado verificando que no contenga errores.
19. Transporte a almacén (congelador).- El producto empaquetado se transporta por medio de una banda sin fin al almacén (congelador).
20. Almacenamiento.- Ya que el helado se encuentra en los contenedores o envases es llevado al departamento de endurecimiento, donde permanecerá hasta que llegue el momento final de su despacho. La temperatura del cuarto de endurecimiento debe mantenerse entre los -25 y -30° C y debe ser controlado automáticamente para que se evite una fluctuación en la temperatura. El endurecimiento debe acompletarse dentro de un lapso de 24 horas.
Determinación del Personal.
Organigrama

Personal

Requisito común básico.
Secundario completo.
Gerente general.
Funciones Generales:
Definir políticas generales de planeamiento, organización dirección y control dentro de la empresa. Con el fin del cumplimiento del plan de ventas.
Dirigir y controlar el desempeño de las áreas.
Planear y desarrollar metas a largo o corto plazo, contando con el apoyo de los otros miembros de la empresa.
Requerimientos Específicos:
- Mayor a 30 años.
- Experiencia no menor a 5 años desarrollando actividades similares.
- Graduado de Administración de empresas, Ingeniería Industrial o carreras afines.
- Liderazgo.
- Habilidades interpersonales
Gerente de Producción
Funciones Generales:
Responsable del área de producción de la planta y del cumplimiento de objetivos establecidos.
Encargado de la realización del plan de acción e informes de producción al gerente general.
Planificación y programación de la producción.
Control del cumplimiento de los plazos de entrega.
Optimización de los recursos productivos de la empresa.
Requerimientos Específicos:
- Ser graduado universitario de la carrera de Ingeniería Industrial/ en procesos.
- Manejo de sistemas de gestión.
- Poseer 5 años de experiencia en posiciones similares.
- Metódico y organizado en su trabajo.
- Cargo: Encargado de Mantenimiento
Funciones Generales:
Llevar a cabo la ronda de inspección y control de las instalaciones, realizando una supervición de estas.
Revisión de los parámetros de las maquinarias según los manuales y normativas de cada una y realización de los informes pertinentes de medidas a adoptar.
Realización de trabajos de mantenimiento general.
Requerimientos Específicos:
- Técnico mecánico/electrónico.
- Sólidos conocimientos en reparación de maquinarias.
- Experiencia no menor a 2 años en el sector.
Operarios
De depósito
Su función es la de recibir las materias primas e insumos de los proveedores y aprovisionarlas en el almacén correspondiente.
Transporte de MP
Se encarga de transportar la materia prima necesaria al almacén y llevarla a la línea correspondiente de producción, con el fin de abastecer la demanda de la línea.
Operarios de máquinas
Por cada máquina (Agitadora, Mezcladora,Puasterizadora y Tanque homogenizador) hay un operario encargado del uso y control de su respectiva máquina.
Hay cuatro en total, uno por cada línea, acompañado por un ayudante con conocimientos técnicos, que complementa el trabajo del operario.
Capacitación de operarios
A cada operario se le ofrece una capacitación específica de todas las máquinas. Esto permite que exista rotación de puesto en caso de una urgencia o accidente.
Responsable de control de calidad.
Funciones Generales:
Monitorear, supervisar y evaluar los procesos de mejoramiento de la calidad.
Asegurarse de que se establecen, implementan y mantienen los procesos necesarios para el sistema de gestión de la calidad.
Garantizar la realización de las pruebas necesarias para verificar la conformidad de los productos.
Requerimientos específicos:
- Técnico químico.
- Experiencia mínima de 2 años en tareas de control de calidad en el rubro alimenticio.
- Capacidad de análisis y toma de decisiones.
- Experiencia en el trabajo con normas de calidad ISO 22000, ISO 9000 y la 9001/2008 y la 14000
Inspector de calidad
Funciones generales
Controlar la materia prima y el producto terminado, inspeccionando muestras aleatorias y comprobando el cumplimiento de las características básicas que deben cumplir, según lo disponga el responsable de calidad. El inspector recibiría capacitación en la planta.
Responsable de compras
Funciones generales:
Planificación de requerimientos de materias primas, materiales, repuestos, insumos. Pedido a proveedores. Análisis comercial.
Realizar la planificación para el correcto aprovisionamiento de todos los materiales necesarios, entablar relación con proveedores y realizar análisis comerciales sobre la evolución del mercado.
Requisitos específicos:
- Sexo indistinto
- Experiencia previa mínima de 1 año en puestos similares
- Manejo de office
- Administrador de empresas, Ingeniero industrial o carreras afines.
Responsable de ventas
Funciones generales:
Conseguir y concretar las ventas del producto. Atención al cliente. Facturación.
Realizar las ventas del producto, asesorar a los clientes, atender reclamos y realizar la facturación de estos.
Gestionar las actividades logísticas.
Requisitos específicos:
- Experiencia previa en ventas
- Capacidad de persuasión
- Manejo de office
- Carreras: administración de empresas, marketing o carreras afines.
Responsable de ventas
Funciones generales:
Será el responsable máximo de las áreas de finanzas, administración y contabilidad de la empresa. Elaborar la información económica que precisa la Dirección General para establecer las estrategias de la empresa.
Requisitos específicos:
- Licenciado en administración/ Contador.
- Experiencia mínima: 3 años en área de contabilidad y finanzas empresariales, además de experiencia en coordinación con grupos de traba
Determinación de las máquinas e instalaciones.
Balanza
Digital con peso máximo 500kg

Mezcladora de concentrados
Se utilizará una Mezcladora RJCI de Tetra Pack para mezcla de polvos y concentrados con reacción radial e inyección coaxial.
Capacidad para 100 lts por carga, durando cada carga aproximadamente 1 hora y estimando en promedio que los concentrados tienen una densidad de 0,45 kg/lts, obtendremos una capacidad teórica de 45 kg/ hora.
Mezclador de batch

SOFRAMIX 700: Se usará una mezcladora de batch que consta de una cuba vertical, con árboles centrales y coaxiales y fondo cónico. Su capacidad máxima es de 700 lts ( Siendo la densidad de la leche de 1,03 kg/lt se obtiene una capacidad de 772 Kg) y mínima de 60lts y tiene un diámetro de cuba de 1200mm y una altura de cuba de 750 mm
Trifásica
Potencia de motor 15 Kw
Fusible 50 A
Mantenimiento
Sistema de limpiado en sitio:
La solución que tiene está maquina es completamente automatizada haciendo la limpieza rapida y eficiente y los resultados reproducibles con calidad constante del producto terminado. De esta manera se anulan riesgos riesgos del error humano.
Pasteurizador HTST

Con una capacidad de 500ts/hora El pasteurizador INOXPA es un equipo compacto compuesto por :
- Tanque de balance, de 100 litros, en AISI 304.
- Bomba de alimentación centrífuga Hyginox SE.
- Intercambiador de calor de placas. Con bastidor de acero inoxidable, placas de acero inoxidable AISI 316L de 0,6 mm de espesor. Con juntas de NBR, fijadas mecánicamente.
- El tubo retenedor diseñado con ligera inclinación para mejorar el drenaje del tubo.
- Válvula de desvío automática tipo KH (3 vías), además de válvulas de mariposa de operación manual y la instrumentación necesaria para el control de la temperatura de pasteurización.
- Válvula modulante de 3 vías, para el agua caliente, con posicionador electroneumático.
- Todo el skid de pasteurización va montado sobre una estructura en acero inoxidable con patas regulables en altura.
- Un cuadro de control en acero inoxidable AISI 304 para operar el equipo con regulador de temperatura.
Homogeneizado
Se utilizará un Homogeneizador Tetra Pak con capacidad para 1000lts/hora es decir cerca de 550 kg/hora ya que ene ste punto la densidad de la mezcla empieza a acercarse a la densidad del helado de 550 gr/lts.
Tanque de maduración (enfriadores)
FINAMAC: Tanque cilíndrico en acero inoxidable, con circuito de enfriamiento al rededor y al fondo. Hace la refrigeración por medio del gas de refrigeración. Agitador de baja rotación fijado al tanque, garantizando la perfecta distribución del frío al producto, e impidiendo la decantación de los sólidos suspendidos en la formulación.

Baja rotación, para evitar la formación de espumas de proliferación de los organismos patogénicos (pudiendo provocar enfermedades) y también evitarse la incorporación de aire en la mezcla.
Capacidad de producción: 630 kg
Consumo de electricidad: 0,9 kW - 1,2kW
Instalacion: 220V, monofásica - BIfásica 60 hz
Cajón de Dimensiones:
Largo: 1800mm
Ancho 1500mm
Alto: 1500mm
Equipo de dimensiones:
Largo: 1410mm
Ancho: 1230 mm
Altura: 1650mm
Peso neto: 220kg
Mantenimiento
Tapa basculante bipartida, inclinación de tapas y puente de vacio total de agua de lavado. Grifo sanitario desmontable.
Cuartos de congelación
Un cuarto de aproximadamente 25 m2 estará consumiendo entre 800W y 1000W incluyendo motores e iluminación.
Balance anual del material. Producción seccional
Para los siguientes cálculos se consideró una sola línea de producción de las cuatro planteadas (Dulce de leche y sus variantes, Chocolate y sus variantes, Cremas y helados de frutas). Se tomará la línea que según la encuesta realizada en el dimensionamiesto comercial tiene más demanda es decir el Dulce de Leche y sus variantes con cerca del 43%. Para los siguientes cálculos se supondrá que la linea tomada tiene la producción total (472115 kg ) resultando así una producción final de la línea de 472115 kg

Mezclado de leche= 7,5%
Agitación de concentrados = 92,5 %

Volumen total ingresado en la primera sección operativa = 523.351 kg/año
Consumo real de materia prima = 523.351 kg/año
Porcentaje de desperdicio operativo = 10,85 %
Porcentaje de desperdicio real en función de la producción = 10,85 %
Ritmo de Trabajo
Se trabaja con 1 equipo durante 6 días a la semana con 1 un turno diario de 8 horas. Cada operario trabajará 6 días a la semana con un día de descanso los Domingos. A los 365 días del año habrá que descontarle los 15 días de vacaciones y los 10 feriados obligatorios en el año.
Durante los días de vacaciones se contratará personal que se ocupará del mantenimiento general; el mantenimiento ordinario y preventivo se hará incidir en el rendimiento operativo de la maquinaria.
a) Horas activas/año de las máquinas operativas.
Días activos/año = 365 - 15 - 10 = 340 días.
Horas activas/año = 340 días activos/año x 8 horas/día = 2720 horas.
b) Horas/año trabajadas por cada operario.
Por haber 1 equipo de operarios, cada uno de ellos trabajará 2720 horas al año.
Capacidad real anual de la máquina tipo de cada sección operativa

Consideraciones:
Mezcladora de Batch (mixturas): 750 lts/hora = 772kg/ hora (densidad: 1,03 kg/lts)
Pasteurizador: 500lts/hora = 515 kg/hora
Maduración (enfriado)= 630kg cada 24 horas = 26,25 kg/hora
Determinación de la cantidad de maquinas operativas por sección, capacidad real anual de cada sección y su aprovechamiento en relación al programa de producción.

Cuello de botella y capacidad real anual del equipo
El cuello de botella es la agitación de concentrados; la sección operativa 1

La Capacidad real de la producción es la capacidad cuando el cuello de botella esta trabajando al 100%. En este caso cuando la agitación de concentrados produce 520.200 kg/hora. Por ende la capacidad real es de 558.054kg/ hora.
Notese que el mezclador de Leche agrega un 17,5% a la mezcla total, por eso la capacidad real es mayor que la capacidad del cuello de botella.
Determinación de la evolución de mercaderías
Evolución de la producción
Consideraremos un período de puesta en marcha de 6 meses en el que la producción va aumentando de forma lineal hasta llegar al 100%
Considerando los ya mencionados 15 días de vacaciones y 10 feriados en el total del año, tendremos el total de 11,5 meses utiles con el cual llegamos a la producción mensual promedio:
472.115/11,5 = 41.053 kg por mes

Resto del año 1 = 11,5 - 6 = 5,5 meses
| Volumen de producción durante el resto del año 1 | 225.794kg |
| Volumen de producción total en el año 1 | 348.544 kg |
| Volumen de producción anual en los años 2 a 5 | 472.115kg |
Stock promedio de producto elaborado
| Período de entregas | 3 | Días |
| Períodos por año = 340días / 3 | 113 | Períodos/ año |
| 472.115 [kg/año] / 113 período | 4178 | Kg/ períodos |
| Stock de seguridad | 0,5 | días |
| Períodos por año | 680 | períodos/año |
| Stock Min por período | 694 | Kg / períodos |
Stock promedio de Producto terminado = (4178 + 694) / 2
Stock promedio de Producto terminado = 2436,5 Kg
Evolución de las ventas durante la vida útil del proyecto
| Ventas en el año 1 | Producción - stock de Producto terminado | 346.108 kg |
| Ventas en el año 2 a 5 | 472.115 kg |
Consumo de Materia prima para el programa de producción y formación de la mercadería en curso y semielaborado.
Como se ve en el cuadro de desperdicios del balance anual. El porcentaje de desperdicios en régimen es de un 10%. En el período de puesta en marcha duplicaremos ese porcentaje llegando al 20% de desperdicios
| Consumo de materia prima en los primero 6 meses | 122.750 *1,2 | 147.300 | Kg |
| En los 5,5 meses restantes | 225.794 * 1,1 | 248.374 | Kg |
| Total materia prima para la producción | 395.673 | Kg | |
| Volumen de la producción en el año 1 | 348.544 | Kg | |
| Desperdicio no recuperable | 47.129 | Kg |
Consumo de materia prima en la mercadería en proceso
Ciclo de elaboración = 2,5 días
Volumen de materia prima requerido = (523.351/340) * 2,5 = 3.848 kg
Consumo total de materia prima en el año 1
| Para productos elaborados | 395.673 | Kg |
| Para mercadería en curso y semielaborado | 3.848 | Kg |
| Total consumo materia prima | 399.522 | Kg |
Año 2 a 5
| Consumo MP | 523.351 | Kg |
| Desperdicio no recuperable | 51.236 | Kg |
| Producción anual | 472.115 | Kg |
Stock Promedio de Materia Prima
Al tratarse en su mayoría de productos perecederos y como queremos garantizar la calidad de nuestro producto impondremos un stock máximo de 1 mes (45.509 Kg) y un stock mínimo de 1 semana (11.377 Kg)
Por ende nuestro stock promedio será de 28.443 Kg
Cuadro de evolución de mercaderías

Equipos auxiliares, muebles y útiles
Area de producción, administración y comercialización
- Carretillas (solo para el área de producción)
- Escritorios
- Mesas
- Sillas
- Computadoras
- Articulos de papeleria
- Impresoras
- Telefonos
- Carpetas/Biblioratos para archivar documentacion
- Organizadores de papeles
- Cajoneras
- Armarios
- Abrochadoras
- Artículos varios de librería (biromes, lápices, pegamentos, reglas, etc.)
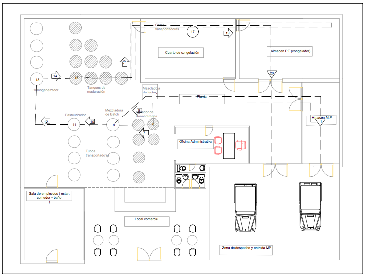
Anteproyecto de planta
Referencias:
Línea roja: Dulce de leche y sus variantes
Línea amarilla: Chocolate y sus variantes
Línea verdre: Cremas
Linea Azul: Gustos frutales

Diagrama de flujo
En el siguiente diagrama se encuetra representado 1 de las 4 líneas de producción

Cronograma de ejecución


