Diferencia entre revisiones de «2023/Grupo2/DimensionamientoFisico»
Sin resumen de edición |
Sin resumen de edición |
||
| Línea 290: | Línea 290: | ||
[[Archivo:Captura de pantalla 2023-08-16 173705.png|alt=|centro|miniaturadeimagen|702x702px]] | [[Archivo:Captura de pantalla 2023-08-16 173705.png|alt=|centro|miniaturadeimagen|702x702px]] | ||
<u>Consumo de agua</u> | <u>Consumo de agua</u> | ||
[[Archivo:Captura de pantalla 2023-08- | [[Archivo:Captura de pantalla 2023-08-16 210723.png|alt=|centro|miniaturadeimagen|841x841px]] | ||
=== Mantenimiento y medios de control (máquinas, tareas, etc.) === | === Mantenimiento y medios de control (máquinas, tareas, etc.) === | ||
Revisión del 00:09 17 ago 2023
Determinación de la Localización
Alternativas de Localización
- Galpón Almagro: Techado, 444mts2. Se puede habilitar para fábricas. Amplio depósito de 432 m2 con techos de 3,8 m2 de altura (Tinglado con manta ignífuga) y un entrepiso de 16 m2, (con una altura de 2,5 m2). Con 2 oficinas, dos baños y dos vestuarios. (https://terreno.mercadolibre.com.ar/MLA-1320263896-venta-de-fabrica-galpon-local-en-almagro-_JM#position=7&search_layout=grid&type=item&tracking_id=4a6179fe-4163-404a-9aae-992afe2e1566)
- Galpón Boedo: Distrito tecnológico. Frente: 12,98m. Fondo: 38,80m y 40,29m. Área edificable en planta: 305m2. INSTALACIONES: Tanques de agua, Interceptor decantador(https://terreno.mercadolibre.com.ar/MLA-1354290409-terrenogalpon-boedo-galpon-centrada-para-camiones-oficinas-y-terraza-975m-_JM#position=11&search_layout=grid&type=item&tracking_id=4a6179fe-4163-404a-9aae-992afe2e1566)
- Galpón Lomas de Zamora: 8,66m de ancho x 40m de fondo. Tinglado con manta ignífuga, 2 pisos, primero de planta y 2do de oficinas. https://inmueble.mercadolibre.com.ar/MLA-928049275-excelente-galpondeposito-con-oficinas-y-ascensor-banfield-_JM#position=15&search_layout=grid&type=item&tracking_id=d29d5955-04bf-4e14-a6f6-215c7e4b57aa
Factores como aspectos climáticos, legales, topográficos, sociales y culturales no variarán sea cual sea la ubicación de la planta.
Matriz de Localización:
Para determinar la ubicación de la planta, se utilizó una matriz de localización. Este método consiste en analizar los diferentes lugares donde es posible ubicar el proyecto, buscando establecer un lugar que ofrezca los máximos beneficios y los mejores costos, es decir que se obtenga la máxima ganancia. Para esta matriz se utilizo un rango de valorización de 1 (poca importancia) a 5 (mucha importancia).
| Factor | Alternativa 1 | Alternativa 2 | Alternativa 3 | ||||
| Almagro - CABA | Boedo - CABA | Lomas de Zamora | |||||
| IRfp | DRfa | IRfp x DRfa | DRfa | IRfp x DRfa | DRfa | IRfp x DRfa | |
| Medios de transporte | 3 | 4 | 12 | 5 | 15 | 3 | 9 |
| Disponibilidad de Mano de Obra especializada | 2 | 4 | 8 | 4 | 8 | 5 | 10 |
| Cercanía de la fuente de abastecimiento | 3 | 3 | 9 | 3 | 9 | 2 | 6 |
| Cercanía de Mercado | 5 | 5 | 25 | 5 | 25 | 4 | 20 |
| Posibilidad de Tratar los desechos | l | SI | PA | SI | PA | SI | PA |
| Disponibilidad de energía Eléctrica | 5 | 5 | 25 | 5 | 25 | 3 | 15 |
| Existencia de otra infraestructura industrial | 1 | 3 | 3 | 3 | 3 | 5 | 5 |
| Comunicación | 3 | 5 | 15 | 5 | 15 | 4 | 12 |
| Disponibilidad de Parques Industriales | 2 | 1 | 2 | 1 | 2 | 3 | 6 |
| Disponibilidad de agua corriente | I | SI | PA | SI | PA | SI | PA |
| Valor y disponibilidad de terrenos | 5 | 2 | 10 | 3 | 15 | 5 | 25 |
| Total | 109 | Total | 115 | Total | 108 | ||
Como resultado obtenemos la localidad de Boedo - CABA, la cual dispone de todos los servicios necesarios, variedad de transportes (Colectivos, Subte) y accesos, cuenta con cercanía a los proveedores y consumidores. El valor del metro cuadrado en esta localidad tiene un promedio de 400usd/m2 contra 640usd/m2 de la primera alternativa.
Definición Técnica del Producto
Planos y/o Dibujos


Listado de Materiales (BOM)
| Item | Descripción | Código | Nivel | Cantidad | Unidad de medida |
| 1 | Pack X cantidades | PackX | 1 | 1 | Un. |
| 2 | Virulana | Vir001 | 2 | 8 | Un. |
| 3 | Empaque de plastico | Empl | 2 | 1 | Un. |
| 4 | Alambrón | AL1000 | 3 | 1 | Tn |

Especificaciones Técnicas
- Producto: Lana de acero (virulana)
- Color: Gris
- Peso: 2 kg/rollo
- Composición: Acero tratado al carbono
- Punto inflamabilidad: Superior a los 600°C
- Solubilidad: Insoluble en agua
- Productos a evitar: Ácidos
Normas Aplicables
Este producto debe ser almacenado, manipulado y usado de acuerdo con las prácticas comunes de higiene industrial y en conformidad con la legislación vigente SAE 1010.
Características Condición del Producto
La característica condición del producto se basa mayormente en la calidad de la lana de acero. Para lograr, junto con las propiedades del aceite lubricante, mayor duración y terminación adecuada.
Plan de Ensayos
Control de calidad de la recepción de la MP
Lo primero que se hace es un control del alambrón mediante un "micrómetro para diámetro de hilos" para verificar que el espesor del alambroó cumpla con la tolerancia permitida según la medida especificada por el proveedor, esto nos beneficiaría en un ahorro logístico ya que no mandaríamos una MP defectuosa al almacén.

Control de calidad del PT
Después se controla mediante una balanza que el peso de la lana de acero sea de acuerdo a las especificaciones, el cual varia entre 2 a 3 kg. También se controla el diámetro final de la lana de acero según las especificaciones con un "micrómetro para roscas".


Control de calidad del empaquetado final
Por último, se controla el cerrado hermético del empaque para mantener la inocuidad del producto.
Acondicionamiento del Producto
Una vez finalizado todo el proceso de producción y empaquetado, se almacenarán los bolsones y luego se procederá a transportar la mercadería a los distintos centros de distribución.
Definición del Proceso de Producción
Diagrama de Flujo de Fabricación y Control.

Cursogramas gráficos o analíticos

Descripción de cada etapa del proceso productivo
- Recepción de MP: Se recibe la Materia Prima necesaria para la producción de ovillos de lana de acero.
- Control de calidad de MP: Se controla que el alambrón cumpla con las especificaciones del fabricante, si no cumple con las condiciones establecidas no se lo traslada al almacén.
- Trefilado: Se trefila el alambrón para llevarlo a la sección de maquinado, conformando Spyders (rollos de centro hueco de 1000kg).
- Lubricado: Se bañan las piezas de lana en un aceite lubricante que le proporciona propiedades anticorrosivas y evita que genere chispas con los raspadores en la siguiente etapa del proceso.
- Reposo / Secado: Se deja estacionar los Spyders 24/48hs para que termine de secarse y evapore los componentes líquidos.
- Maquinado: Se montan los Spyders en la Alanera, máquina con raspadoras de cuchillas, despeluzando los hilos de alambre y armando rollos de lana de 12kg cada uno.
- Ovillado: Se monta en las ovilleras para dividir los rollos en las unidades finales de lana de acero de 50gr.
- Control de calidad de la virulana: Se verifica que la virulana cumpla con el peso y aspecto establecido, a las vez que también se controla el diámetro final
- Empaquetado: Se acomoda el producto terminado en la máquina empaquetadora, guardando los ovillos en bolsas de 8 y 15 unidades.
- Control de calidad del empaquetado: Se controla que el empaque este bien cerrado para proteger el producto.
- Almacén de PT: Se almacenan las bolsas de ovillos para luego tenerlas disponibles para su distribución.
Determinación de las máquinas e instalaciones. Cálculos
Especificaciones técnicas de las máquinas (capacidades, tamaño de lotes, tiempos)
Trefiladora

Modelo: WD-810N
Diámetro del Tambor: 810 mm
Diámetro del Alambrón: 12 mm
Diámetro del Alambre Trefilado: 5.5 mm
Motor: Primer paso (60HP), segundo paso (50HP) y tercer paso (40HP)
Peso: 1800 kg
Capacidad: 600 kg/h
Consumo: 2 KW
Alanera

Consumo: 12 KW
Ovillera

Modelo: SCT.180 NEXUS
Capacidad: 46 kg/h
Consumo: 15 KW
Empaquetadora

Modelo: SL 44
Potencia: 1650 W
Capacidad: 200 Paquetes/hora
Consumo: 0,5 kW
Peso de la maquina: 63 kg
Consumos de energía, agua y otros servicios
Consumo eléctrico

Consumo de agua

Mantenimiento y medios de control (máquinas, tareas, etc.)
Se realizará un mantenimiento preventivo de las maquinas y los equipos, a la vez que también se realizará un mantenimiento correctivo.
Mantenimiento preventivo
Se inspeccionarán diariamente las maquinas y los equipos, antes de iniciar el proceso productivo para poder disminuir el numero de fallas por hora de marcha de los mismos.
Se realizará una vez al mes una parada de planta total para limpiar bancadas, afilar raspadores y revisar sistemas de refrigeramiento.
También se realizará todos los meses un control más profundo de la maquinaria y su estado por parte del personal de mantenimiento, quienes controlan tanto el software como la parte eléctrica y cada 6 meses se realizará una inspección de las condiciones edilicias de la planta evaluando el estado de las instalaciones y la señalización de la planta.
Por otro lado, se controlará cada bimestre el estado de todo el equipo informático de la empresa, ya se las computadoras y sistemas automáticos, con el soporte de fabricantes.
Mantenimiento correctivo
En el caso en que se detecte un defecto o irregularidad en una maquinaria, se realiza una parada con inspección y reparación del equipo de mantenimiento. De ser una falla que los operarios no puedan solucionar se contactará con la empresa proveedora para solicitar un mantenimiento correctivo o soporte.
Descripción de los sistemas de seguridad (incendios, accidentes, etc.)
Según la política de la empresa, se seguirán las normativas y recomendaciones de responsables de Seguridad e Higiene.
En caso de incendios:
- Se contará con detectores de humo.
- Se contará con extintores ABC ubicados por toda la planta.
En caso de accidentes:
- Se le otorgará al personal equipo personal de protección EPP adecuado para las tareas a realizar: calzado de seguridad y ropa de trabajo.
- Las máquinas estarán equipadas con sistemas anti-accidentes y paradas de emergencia.
Capacitación del personal:
- Todo el personal estará capacitado sobre los riesgos que pueden existir al operar con la maquinaria y cómo utilizar el sistema de parada manual de emergencia.
Balance materia prima

Ritmo de trabajo

Capacidad real anual

Determinación de la cantidad de máquinas operativas por sección

El cuello de botella es el MAQUINADO.
Producción con cuello de botella al 100%

Determinación de la evolución de las mercaderías
Evolución de la producción

Stock promedio de producto terminado

Evolución de las ventas durante la vida útil del proyecto

Consumo de materia prima para el programa de producción y formación de la mercadería en curso y semielaborada.


Stock promedio de materia prima y el programa de compras

Cuadro resumen del programa general de evolución

Determinación del Personal
Organigrama de toda la empresa

Descripción de los Puestos de Trabajo
Gerente general
Encargado de la toma de decisiones estratégicas, la planificación y la supervisión general de la empresa. Toma decisiones importantes sobre la dirección a seguir y define las estrategias para lograr el crecimiento y el éxito a largo plazo. Esto incluye la planificación operativa, financiera y de recursos humanos. Además, supervisa y gestiona la implementación de estos planes en toda la organización. Actúa como la cara de la empresa y representa a la organización ante clientes, proveedores, accionistas, socios comerciales y otras partes interesadas. Participa en reuniones, conferencias y eventos clave para promover la empresa y establecer relaciones sólidas con el mercado. Supervisa la gestión financiera de la empresa, incluyendo el presupuesto, la contabilidad y el control de costos. Se asegura de que la empresa opere de manera rentable y eficiente, y toma decisiones financieras importantes para mantener la salud financiera de la organización.
Cantidad: 1
Analista de marketing y encargado de ventas
Realiza investigaciones para comprender las tendencias del mercado, las necesidades y preferencias de los clientes, y la competencia. Analiza los datos recopilados para identificar oportunidades y desarrollar estrategias de marketing efectivas. Crea y coordina campañas de marketing que incluyen publicidad, marketing digital, relaciones públicas, promociones y eventos. Realiza el seguimiento y análisis de las campañas de marketing para evaluar su efectividad. Participa en la elaboración de planes estratégicos de ventas, estableciendo objetivos y estrategias para alcanzarlos. Genera relaciones sólidas con los clientes existentes, brindándoles un excelente servicio y apoyo. Comprende las necesidades de los clientes y se asegura de que se satisfagan de manera adecuada y oportuna. Realiza un seguimiento de las ventas, monitorea el progreso hacia los objetivos y analiza los datos de ventas. Identifica tendencias, áreas de mejora y oportunidades de crecimiento.
Cantidad: 1
Encargado de logística y compras
Supervisa y controla el inventario de la empresa, asegurando un nivel adecuado de existencias para cumplir con la demanda de los clientes. Identifica proveedores potenciales, solicita cotizaciones y negocia términos y condiciones de compra. Busca oportunidades para reducir costos en la cadena de suministro, ya sea a través de negociaciones con proveedores, consolidación de compras o búsqueda de alternativas más rentables. Establece y mantiene relaciones sólidas con los proveedores, evaluando su desempeño, calidad de productos y servicios, y asegurando el cumplimiento de los plazos de entrega. Coordina la logística de transporte, almacenamiento y distribución de los productos. Se asegura de que los productos lleguen a tiempo y en las cantidades adecuadas a los clientes y/o puntos de venta. Se asegura de que todos los procesos de logística y compras cumplan con las regulaciones y leyes aplicables, como los requisitos de importación/exportación y las normas de seguridad.
Cantidad: 1
Gerente de producción
Supervisa y lidera al equipo de producción, asegurando una adecuada asignación de tareas, la capacitación del personal y la motivación del equipo. Fomentaría un entorno de trabajo seguro y colaborativo, promoviendo la calidad y la eficiencia en la producción. Se asegura de que los ovillos de lana de acero cumplan con los estándares de calidad establecidos. Será responsable de planificar y programar la producción, esto incluye establecer los volúmenes de producción, definir los tiempos de fabricación y coordinar los recursos necesarios, como la maquinaria, los materiales y el personal. Buscar constantemente oportunidades para mejorar los procesos de fabricación, identificar ineficiencias y reducir costos.
Cantidad: 1
Jefe de calidad
Es responsable de establecer los estándares de calidad para los ovillos de lana de acero y asegurarse de que se cumplan en todas las etapas de producción, esto implica definir las especificaciones técnicas y los criterios de aceptación para el producto. Diseña e implementa sistemas y procedimientos de control de calidad para monitorear y evaluar la calidad de los ovillos de lana de acero en cada etapa de producción. Proporciona capacitación y entrenamiento al personal de producción sobre los estándares y procedimientos de calidad, asegurándose de que todos los empleados estén familiarizados con los requisitos de calidad y sepan cómo realizar su trabajo de acuerdo con ellos. Gestiona y resuelve los reclamos o quejas de los clientes relacionadas con la calidad de los ovillos de lana de acero. Investiga las causas subyacentes, toma medidas correctivas y se asegura de que se tomen acciones preventivas para evitar problemas futuros.
Cantidad: 1
Operarios
Los operarios operan y supervisan las máquinas y equipos utilizados en el proceso de fabricación. Llevan a cabo tareas de mantenimiento básico en las máquinas y equipos utilizados en la producción, esto puede incluir la limpieza, el ajuste o el reemplazo de piezas sencillas. Los operarios registran datos relevantes durante el proceso de producción, como el número de productos fabricados, el tiempo de producción, los datos de calidad y cualquier otro registro requerido.
Cantidad: 7
Administrativo General
Responsable en comunicación directa con los proveedores, recepción de materia prima, facturación y registro de cuentas a pagar. Se encargara de la comunicación interna de la planta y funcionara como secreario general de la planta.
Cantidad: 1
Calificación y Formación necesaria de los Operadores.
Gerente general
- Titulo universitario de Ingeniero Industrial.
- Edad mayor a 35 años.
- Experiencia previa en roles de gestión, supervisión o liderazgo dentro de una organización. Minimo 5 años.
- Habilidades de liderazgo, pensamiento estratégico y habilidades de comunicación.
- Con capacidad de tomar decisiones basadas en datos y métricas, y de gestionar eficientemente los recursos disponibles.
Analista de marketing y encargado de ventas
- Graduado en Marketing.
- Experiencia en el área, mínimo 3 años.
- Idioma y Nivel Requerido: Inglés Intermedio.
- Buen manejo de redes sociales.
Encargado de logística y compras
- Licenciado en Administración de empresas.
- Experiencia previa en el área de logística y compras, minimo 3 años.
- Conocimiento en sistemas de manejo de almacenes.
- Conocimiento de planificación, negociación y liderazgo.
- Conocimiento de paquete office, Excel avanzado.
Gerente de producción
- Recibido de Ingeniero Industrial.
- Experiencia en planta, minimo 3 años.
- Dominio avanzado de Excel.
- Valoramos conocimientos de producción de lana de acero.
Jefe de calidad
- Titulo de Ingeniero Químico.
- Experiencia previa en el área, minimo 3 años.
Operarios
- Secundario completo.
- Habilidades de trabajo en equipo
Administrativo General
- Habilidades de comunicacion
- Experiencia en manejo de proveedores
- Manejo de Excel
- Conocimientos de contabilidad y cobranzas
Listado de Equipos Auxiliares, Muebles y Útiles
Para todas las áreas de la empresa áreas (Producción, Administración y Comercialización).
Oficina gerente general
- Escritorio. Cantidad: 1
- Silla. Cantidad: 2
- Computadora. Cantidad: 1
- Impresora. Cantidad: 1
- Teléfono. Cantidad: 1
- Útiles de librería. Cantidad: 1
- Aire acondicionado. Cantidad: 1
- Estufa. Cantidad: 1
- Mueble de guardado. Cantidad: 1
Oficina de producción, marketing y ventas, logística y compras y encargado de calidad
- Computadoras. Cantidad: 8
- Escritorios. Cantidad: 8
- Sillas. Cantidad: 8
- Impresora. Cantidad: 1. Cantidad: 1
- Teléfonos. Cantidad: 8
- Útiles de librería. Cantidad: 1
- Mueble de guardado. Cantidad: 2
- Aire acondicionado. Cantidad: 1
- Estufa. Cantidad: 1
Comedor
- Horno. Cantidad: 1
- Heladera y frízer. Cantidad: 1
- Lavavajillas. Cantidad: 2
- Alacena. Cantidad: 1
- Microondas. Cantidad: 2
- Pava eléctrica. Cantidad: 3
- Mesas. Cantidad: 5
- Sillas. Cantidad: 20
- Dispenser de agua. Cantidad: 8
- Aire acondicionado. Cantidad: 1
- Estufa. Cantidad: 1
Sector de Producción
- Sillas. Cantidad: 1
- Sistema de ventilación. Cantidad: 1
- Lentes de protección. Cantidad: 14
- Casco de protección auditiva. Cantidad: 14
- Guantes. Cantidad: 14
Almacenes de MP y PT
- Estantes. Cantidad: 5
- Pallets. Cantidad: 20
Mantenimiento y seguridad
- Matafuegos. Cantidad: 4
- Mangueras. Cantidad: 4
- Detector de humo. Cantidad: 4
- Rociadores contra incendio. Cantidad: 4
- Plano de evacuación. Cantidad: 5
- Uniforme de los operarios. Cantidad: 14
Baño y vestuario
- Duchas. Cantidad: 4
- Inodoros. Cantidad: 4
- Bidet. Cantidad: 4
- Lavamanos. Cantidad: 4
- Espejo. Cantidad: 4
- Bancos de madera. Cantidad: 4
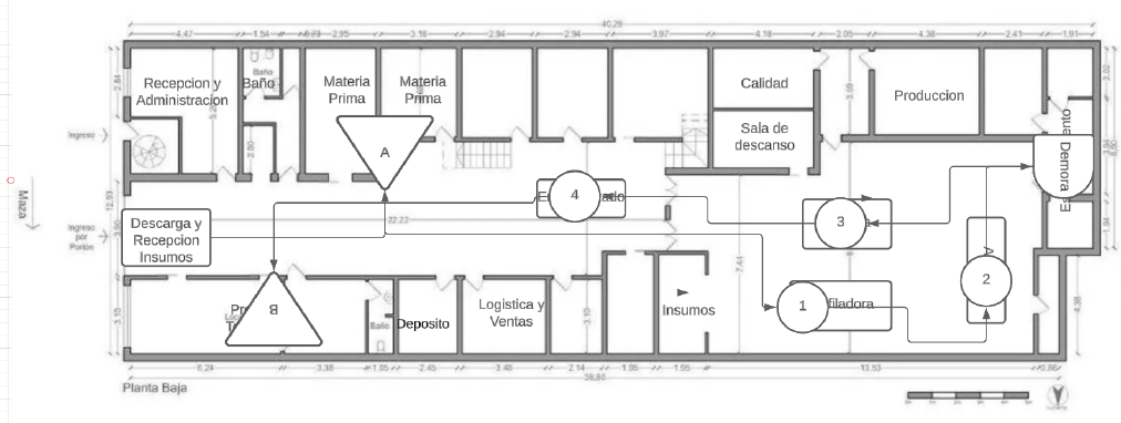
Anteproyecto de Planta
Plano de la Planta mostrando la distribución de las distintas áreas (Producción, Administración y Comercialización)

Plano mostrando el recorrido de los materiales

A: Almacenamiento materia prima e insumos
B: Almacenamiento Producto Terminado
1: Operacion de trefilado
2: Operacion de maquinado
3: Operacion de ovillera
4: Empaquetado
Demora: Estacionamiento lana de acero
Cronograma de ejecución (con los hitos de toma de decisiones, años negativos y las voces que correspondan para el proyecto en particular)

Bibliografía
https://www.ventadeproductosdelimpieza.es/images/fichas/4-rollos-lana-de-acero-lisa-numero-2.pdf
https://www.argentina.gob.ar/enre/uso-eficiente-y-seguro/consumo-basico-electrodomesticos